Дома продажа / Дома, Москва, Москва, 18 990 000
Кратко
ID | 39807283 |
---|---|
Категория | Дома |
Регион | Москва |
Город | Москва |
Этажность | 2 |
Площадь общая | 144 |
Площадь участка | 3 |
В продаже новый готовый дом на собственном участке в Москве!
8 км от МКАД по Ленинградскому шоссе, Молжаниновский район САО города Москвы.
Дом поставлен на учёт в Росреестре, присвоен московский адрес.
Прописка - Москва.
Вся московская инфраструктура: детские сады, школы, поликлиники в пешей доступности (10-25 минут).
Отличная транспортная доступность: 20 минут пешком до МЦД, на машине 30 минут до центра Москвы, можно выбрать маршрут по Ленинградскому шоссе, Дмитровскому шоссе или по М11.
Площадь дома: 144м2
Каркасно-панельная технология с подготовкой на производстве, фасад - панели Dcke, утеплённый фасад цоколя, отмостка из гранитного щебня.
Площадь участка: 3 сотки
Год постройки: 2025
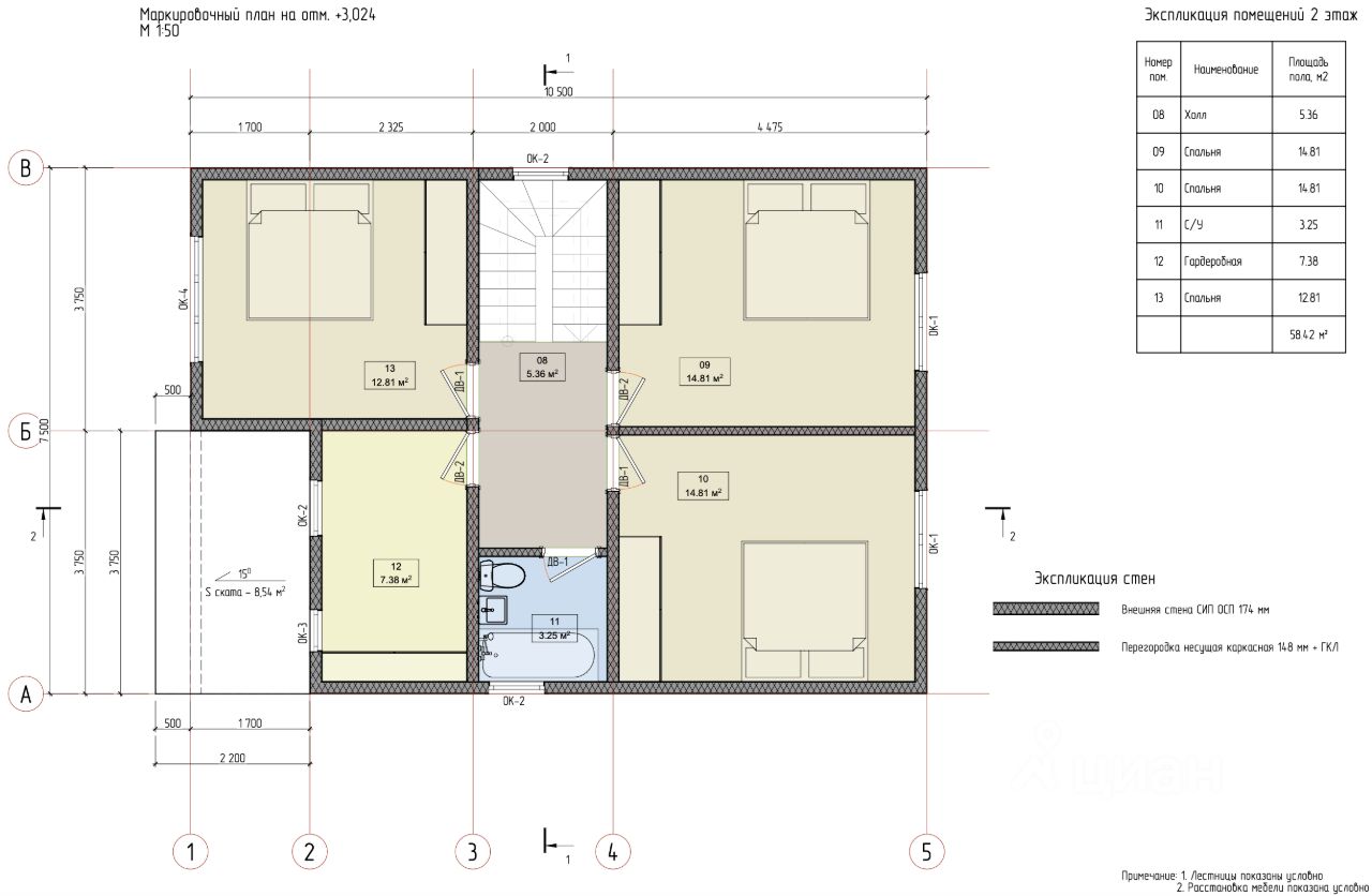
2 этажа, 2 санузла, 4 спальни, просторная кухня-гостиная.
1 этаж: прихожая, спальня/кабинет, санузел с душем, бойлерная, кухня-гостиная.
2 этаж: 3 спальни, гардеробная, санузел с ванной.
Установлена чердачная выкидная лестница для доступа в техническое пространство под крышей.
Коммуникации: электричество, свой колодец с чистой водой, очистная станция (септик), при необходимости, есть возможность подключения к московскому водопроводу .
Выполнена чистовая отделка со шпаклёвкой под обои.
Установлена кухня со встроенной кухонной техникой: холодильник, варочная панель (индукция), вытяжка, духовой шкаф, СВЧ-печь, посудомоечная машина.
Санузлы полностью отделаны: плитка/керамогранит, натяжные потолки, сантехника AM&PM, ванна Jacob Delafon, раковина Cersanit, стеклянное ограждение душа, душевой поддон из литьевого мрамора, умное зеркало с подогревом и Bluetooth на 1 этаже.
В прихожей, кухне и санузлах - тёплые полы с терморегуляторами.
В спальнях и гостиной - ламинат QuickStep с влагозащитой.
Электрический щит на автоматах Legrand, заземление, УЗО, самосробатывающая система пожаробезопасности.
Бойлер на 200л и гидроаккумулятор на 150л обеспечивают бесперебойное водоснабжение на обоих этажах.
Прекрасный вариант, сочетающий в себе плюсы загородной жизни с московской инфраструктурой и транспортной доступностью.
8 км от МКАД по Ленинградскому шоссе, Молжаниновский район САО города Москвы.
Дом поставлен на учёт в Росреестре, присвоен московский адрес.
Прописка - Москва.
Вся московская инфраструктура: детские сады, школы, поликлиники в пешей доступности (10-25 минут).
Отличная транспортная доступность: 20 минут пешком до МЦД, на машине 30 минут до центра Москвы, можно выбрать маршрут по Ленинградскому шоссе, Дмитровскому шоссе или по М11.
Площадь дома: 144м2
Каркасно-панельная технология с подготовкой на производстве, фасад - панели Dcke, утеплённый фасад цоколя, отмостка из гранитного щебня.
Площадь участка: 3 сотки
Год постройки: 2025
2 этажа, 2 санузла, 4 спальни, просторная кухня-гостиная.
1 этаж: прихожая, спальня/кабинет, санузел с душем, бойлерная, кухня-гостиная.
2 этаж: 3 спальни, гардеробная, санузел с ванной.
Установлена чердачная выкидная лестница для доступа в техническое пространство под крышей.
Коммуникации: электричество, свой колодец с чистой водой, очистная станция (септик), при необходимости, есть возможность подключения к московскому водопроводу .
Выполнена чистовая отделка со шпаклёвкой под обои.
Установлена кухня со встроенной кухонной техникой: холодильник, варочная панель (индукция), вытяжка, духовой шкаф, СВЧ-печь, посудомоечная машина.
Санузлы полностью отделаны: плитка/керамогранит, натяжные потолки, сантехника AM&PM, ванна Jacob Delafon, раковина Cersanit, стеклянное ограждение душа, душевой поддон из литьевого мрамора, умное зеркало с подогревом и Bluetooth на 1 этаже.
В прихожей, кухне и санузлах - тёплые полы с терморегуляторами.
В спальнях и гостиной - ламинат QuickStep с влагозащитой.
Электрический щит на автоматах Legrand, заземление, УЗО, самосробатывающая система пожаробезопасности.
Бойлер на 200л и гидроаккумулятор на 150л обеспечивают бесперебойное водоснабжение на обоих этажах.
Прекрасный вариант, сочетающий в себе плюсы загородной жизни с московской инфраструктурой и транспортной доступностью.
Контакты на сайте:
Карта
Похожие
Fatal error: Uncaught TypeError: count(): Argument #1 ($value) must be of type Countable|array, bool given in /var/www/hejtxzzf/data/www/etown.ru/cache/compile/6dadd3569c40e1dc13355e58f2822f5ff669213d_0.file.view_similar.tpl.php:51 Stack trace: #0 /var/www/hejtxzzf/data/www/etown.ru/third/smarty/sysplugins/smarty_template_resource_base.php(123): content_659bb4874b1862_51818915(Object(Smarty_Internal_Template)) #1 /var/www/hejtxzzf/data/www/etown.ru/third/smarty/sysplugins/smarty_template_compiled.php(114): Smarty_Template_Resource_Base->getRenderedTemplateCode(Object(Smarty_Internal_Template)) #2 /var/www/hejtxzzf/data/www/etown.ru/third/smarty/sysplugins/smarty_internal_template.php(216): Smarty_Template_Compiled->render(Object(Smarty_Internal_Template)) #3 /var/www/hejtxzzf/data/www/etown.ru/third/smarty/sysplugins/smarty_internal_template.php(385): Smarty_Internal_Template->render() #4 /var/www/hejtxzzf/data/www/etown.ru/cache/compile/c664159adb2d9ac77b6749f2c5121594a0f7be7e_0.file.view_active.tpl.php(418): Smarty_Internal_Template->_subTemplateRender('file:view_simil...', NULL, NULL, 0, 3600, Array, 0, false) #5 /var/www/hejtxzzf/data/www/etown.ru/third/smarty/sysplugins/smarty_template_resource_base.php(123): content_67074130dc8708_20231701(Object(Smarty_Internal_Template)) #6 /var/www/hejtxzzf/data/www/etown.ru/third/smarty/sysplugins/smarty_template_compiled.php(114): Smarty_Template_Resource_Base->getRenderedTemplateCode(Object(Smarty_Internal_Template)) #7 /var/www/hejtxzzf/data/www/etown.ru/third/smarty/sysplugins/smarty_internal_template.php(216): Smarty_Template_Compiled->render(Object(Smarty_Internal_Template)) #8 /var/www/hejtxzzf/data/www/etown.ru/third/smarty/sysplugins/smarty_internal_template.php(385): Smarty_Internal_Template->render() #9 /var/www/hejtxzzf/data/www/etown.ru/cache/compile/56a38660b9b657662d0686a88ba02502ddbbd4bc_0.file.realty_view.tpl.php(29): Smarty_Internal_Template->_subTemplateRender('file:view_activ...', NULL, NULL, 0, 3600, Array, 0, false) #10 /var/www/hejtxzzf/data/www/etown.ru/third/smarty/sysplugins/smarty_template_resource_base.php(123): content_659bb4873e5fd2_49196044(Object(Smarty_Internal_Template)) #11 /var/www/hejtxzzf/data/www/etown.ru/third/smarty/sysplugins/smarty_template_compiled.php(114): Smarty_Template_Resource_Base->getRenderedTemplateCode(Object(Smarty_Internal_Template)) #12 /var/www/hejtxzzf/data/www/etown.ru/third/smarty/sysplugins/smarty_internal_template.php(216): Smarty_Template_Compiled->render(Object(Smarty_Internal_Template)) #13 /var/www/hejtxzzf/data/www/etown.ru/third/smarty/sysplugins/smarty_internal_template.php(385): Smarty_Internal_Template->render() #14 /var/www/hejtxzzf/data/www/etown.ru/cache/compile/5d93b8113254986f3e88ef514702f6e897abff16_0.file.layout_full.tpl.php(46): Smarty_Internal_Template->_subTemplateRender('realty_view.tpl', NULL, NULL, 0, 3600, Array, 0, true) #15 /var/www/hejtxzzf/data/www/etown.ru/third/smarty/sysplugins/smarty_template_resource_base.php(123): content_659bb42985ca62_78096130(Object(Smarty_Internal_Template)) #16 /var/www/hejtxzzf/data/www/etown.ru/third/smarty/sysplugins/smarty_template_compiled.php(114): Smarty_Template_Resource_Base->getRenderedTemplateCode(Object(Smarty_Internal_Template)) #17 /var/www/hejtxzzf/data/www/etown.ru/third/smarty/sysplugins/smarty_internal_template.php(216): Smarty_Template_Compiled->render(Object(Smarty_Internal_Template)) #18 /var/www/hejtxzzf/data/www/etown.ru/third/smarty/sysplugins/smarty_internal_template.php(385): Smarty_Internal_Template->render() #19 /var/www/hejtxzzf/data/www/etown.ru/cache/compile/3fae5a0abe69c1e265646df005d16ae85e6e3aa5_0.file.main.tpl.php(172): Smarty_Internal_Template->_subTemplateRender('layout_full.tpl', NULL, NULL, 0, 3600, Array, 0, true) #20 /var/www/hejtxzzf/data/www/etown.ru/third/smarty/sysplugins/smarty_template_resource_base.php(123): content_659bb429813a18_78025304(Object(Smarty_Internal_Template)) #21 /var/www/hejtxzzf/data/www/etown.ru/third/smarty/sysplugins/smarty_template_compiled.php(114): Smarty_Template_Resource_Base->getRenderedTemplateCode(Object(Smarty_Internal_Template)) #22 /var/www/hejtxzzf/data/www/etown.ru/third/smarty/sysplugins/smarty_internal_template.php(216): Smarty_Template_Compiled->render(Object(Smarty_Internal_Template)) #23 /var/www/hejtxzzf/data/www/etown.ru/third/smarty/sysplugins/smarty_internal_templatebase.php(238): Smarty_Internal_Template->render(false, 0) #24 /var/www/hejtxzzf/data/www/etown.ru/third/smarty/sysplugins/smarty_internal_templatebase.php(116): Smarty_Internal_TemplateBase->_execute(Object(Smarty_Internal_Template), NULL, NULL, NULL, 0) #25 /var/www/hejtxzzf/data/www/etown.ru/index.php(133): Smarty_Internal_TemplateBase->fetch('main.tpl') #26 {main} thrown in /var/www/hejtxzzf/data/www/etown.ru/cache/compile/6dadd3569c40e1dc13355e58f2822f5ff669213d_0.file.view_similar.tpl.php on line 51