Дома продажа / Дома, Выборгский район, 29 900 000
Кратко
| ID | 39964008 |
|---|---|
| Категория | Дома |
| Город | Выборгский район |
| Этажность | 2 |
| Площадь общая | 275.9 |
| Площадь участка | 9.6 |
Номер объявления: 20677 - назовите его оператору.В КП "Майнила" к покупке предлагается:
дом площадью 275,9 м?;
участок площадью 9,61 соток.
Описание дома
Фундамент: свайный фундамент с ростверками и фундаментной плитой. Ж/б сваи в кол-ве 52 шт, длина до 3 м, высота плиты - 300мм ;
Стены: наружные стены 450мм (газабетон 380 мм, утеплитель Rockwool Фасад Баттс 50мм, штукатурка 20 мм);
Перекрытие: над 1 этажом ж/б плита 200мм
Лестница - монолитная, ж/б;
Кровля: несущие конструкции кровли - стропильные ноги и фермы из досок 200х50 мм, покрытие кровли - металлочерепица;
Окна: Beka, панорамное остекление в зоне кухни-гостинной;
Отопление: отопление и ГВС от собственной котельной;
Высота потолков: 3,4 м - 1 эт., 3,7 м с уклоном - 2 эт.;
Год постройки: 2025 г.;
Степень готовности: готов к чистовой отделке
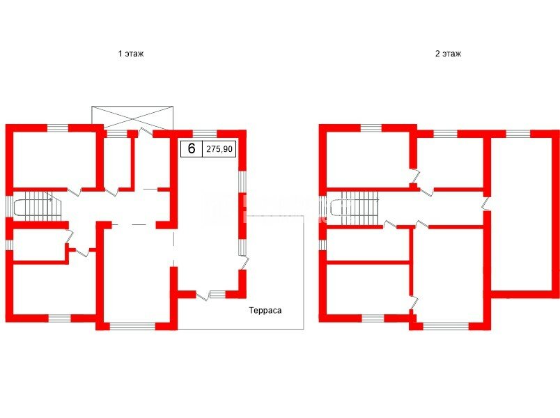
Планировка
1 этаж:
Прихожая с нишами под встроенные шкафы, просторная кухня-гостиная с обеденной зоной с большой площадью панорамного остекления и с возможностью выхода на террасу. Кроме того, на этаже предусмотрены: две жилые комнаты, сан. узел, котельная.
2 этаж:
Основная мастер-спальня с гардеробной и просторной ванной с окном, вторая мастер-спальня с гардеробной и санузлом, с возможностью оборудования сауны. Третья комната свободного назначения. Капитальные перегородки в 40 см - отличная шумоизоляция между комнатами.
Инженерное обеспечение
- электроснабжение (20 кВт), прямой договор с Ленэнерго;
- центральное водопровод;
- ЛОС (септик).
Участок 9,61 соток
Участок ровный, сухой, правильной формы, с естественным уклоном. По всему периметру участка установлен забор с откатными воротами и калиткой. Дом установлен на песчаной подушке с формированием подпорных стенок. На участке сохранены ели, сосны, березы и черничник.
Коттеджный посёлок "Майнила" - 43 участка, камерный и спокойный поселок, все участки выкуплены, ближайшие соседние дома построены;
вид разрешенного использования земель - для ведения дачного хозяйства;
в 10 км от ЗСД, в 60 км от центра Санкт-Петербурга, в 20 км от Сестрорецка и Зеленогорска .
прямой заезд с Верхне-Выборгского шоссе, полностью асфальтированный подъезд;
заезд в посёлок через шлагбаум с дистанционным управлением, дороги повышенной прочности, уличное освещение,
центральный водопровод;
поселок с трех сторон окружен сосновым лесом, лесное озеро - 300м, рядом заказник Ламмин-Суо;
инфраструктура рядом: Спортивно-оздоровительный комплекс Газпром, загородный клуб Репино-Ленинское (кинотеатр, бассейны, каток, тренажерные залы, теннисные корты, спа-зоны, детские игровые комнаты, пункт выдачи, ЦУМ), конный клуб «Северная усадьба», горнолыжный курорт «Пухтолова гора», рестораны и др;
социальная инфраструктура: школа, дет. сад, магазины, почта, пункты выдачи - поселок Ленинское, поселок Симагино;
доступны сервисы доставки еды и такси.
Звоните!
дом площадью 275,9 м?;
участок площадью 9,61 соток.
Описание дома
Фундамент: свайный фундамент с ростверками и фундаментной плитой. Ж/б сваи в кол-ве 52 шт, длина до 3 м, высота плиты - 300мм ;
Стены: наружные стены 450мм (газабетон 380 мм, утеплитель Rockwool Фасад Баттс 50мм, штукатурка 20 мм);
Перекрытие: над 1 этажом ж/б плита 200мм
Лестница - монолитная, ж/б;
Кровля: несущие конструкции кровли - стропильные ноги и фермы из досок 200х50 мм, покрытие кровли - металлочерепица;
Окна: Beka, панорамное остекление в зоне кухни-гостинной;
Отопление: отопление и ГВС от собственной котельной;
Высота потолков: 3,4 м - 1 эт., 3,7 м с уклоном - 2 эт.;
Год постройки: 2025 г.;
Степень готовности: готов к чистовой отделке
Планировка
1 этаж:
Прихожая с нишами под встроенные шкафы, просторная кухня-гостиная с обеденной зоной с большой площадью панорамного остекления и с возможностью выхода на террасу. Кроме того, на этаже предусмотрены: две жилые комнаты, сан. узел, котельная.
2 этаж:
Основная мастер-спальня с гардеробной и просторной ванной с окном, вторая мастер-спальня с гардеробной и санузлом, с возможностью оборудования сауны. Третья комната свободного назначения. Капитальные перегородки в 40 см - отличная шумоизоляция между комнатами.
Инженерное обеспечение
- электроснабжение (20 кВт), прямой договор с Ленэнерго;
- центральное водопровод;
- ЛОС (септик).
Участок 9,61 соток
Участок ровный, сухой, правильной формы, с естественным уклоном. По всему периметру участка установлен забор с откатными воротами и калиткой. Дом установлен на песчаной подушке с формированием подпорных стенок. На участке сохранены ели, сосны, березы и черничник.
Коттеджный посёлок "Майнила" - 43 участка, камерный и спокойный поселок, все участки выкуплены, ближайшие соседние дома построены;
вид разрешенного использования земель - для ведения дачного хозяйства;
в 10 км от ЗСД, в 60 км от центра Санкт-Петербурга, в 20 км от Сестрорецка и Зеленогорска .
прямой заезд с Верхне-Выборгского шоссе, полностью асфальтированный подъезд;
заезд в посёлок через шлагбаум с дистанционным управлением, дороги повышенной прочности, уличное освещение,
центральный водопровод;
поселок с трех сторон окружен сосновым лесом, лесное озеро - 300м, рядом заказник Ламмин-Суо;
инфраструктура рядом: Спортивно-оздоровительный комплекс Газпром, загородный клуб Репино-Ленинское (кинотеатр, бассейны, каток, тренажерные залы, теннисные корты, спа-зоны, детские игровые комнаты, пункт выдачи, ЦУМ), конный клуб «Северная усадьба», горнолыжный курорт «Пухтолова гора», рестораны и др;
социальная инфраструктура: школа, дет. сад, магазины, почта, пункты выдачи - поселок Ленинское, поселок Симагино;
доступны сервисы доставки еды и такси.
Звоните!
Контакты на сайте: