Дома продажа / Дома, Елизово, 16 000 000
Кратко
ID | 39758647 |
---|---|
Категория | Дома |
Город | Елизово |
Этажность | 2 |
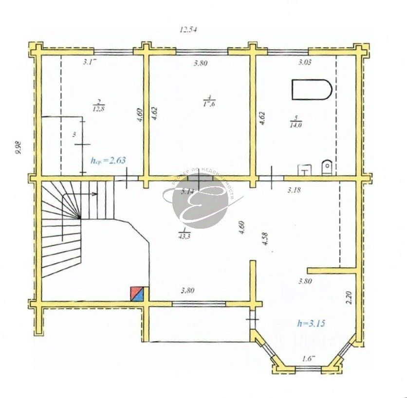
Площадь общая | 246.2 |
Площадь участка | 21.94 |
Приглашаем вас стать обладателем уютного и просторного дома площадью 246 кв.м, расположенного в живописном месте в 3 км от центра города Елизово. Этот двухэтажный дом из бревна диаметром 20 см— отличный выбор для тех, кто ценит экологичность и природную атмосферу.
Преимущества дома:
просторные помещения, которые позволят вам создать комфортное и функциональное пространство;
возможность реализации уникального интерьера, отражающего ваш вкус и стиль;
использование природных материалов, которые создают особую атмосферу в доме и благоприятно влияют на настроение.
Отопление дома: установлены котел на керосине и твердотопливный котел. Заключен договор на газификацию с подключением газа в 2026 году.
Канализация: септик-цистерна на 4 тонны. ХВС поступает централизованно. Электричество: 380 кВт.
Не упустите свой шанс стать обладателем прекрасного дома в живописном месте!
Преимущества дома:
просторные помещения, которые позволят вам создать комфортное и функциональное пространство;
возможность реализации уникального интерьера, отражающего ваш вкус и стиль;
использование природных материалов, которые создают особую атмосферу в доме и благоприятно влияют на настроение.
Отопление дома: установлены котел на керосине и твердотопливный котел. Заключен договор на газификацию с подключением газа в 2026 году.
Канализация: септик-цистерна на 4 тонны. ХВС поступает централизованно. Электричество: 380 кВт.
Не упустите свой шанс стать обладателем прекрасного дома в живописном месте!
Контакты на сайте: