Дома продажа / Дома, Волжский район, 7 499 999
Кратко
ID | 39793419 |
---|---|
Категория | Дома |
Город | Волжский район |
Этажность | 1 |
Площадь общая | 110 |
Площадь участка | 5 |
•Собственник
•Семейная ипотека , сельская , it подходят
•Забронировать дом можно через задаток
•Акредитованный застройщик
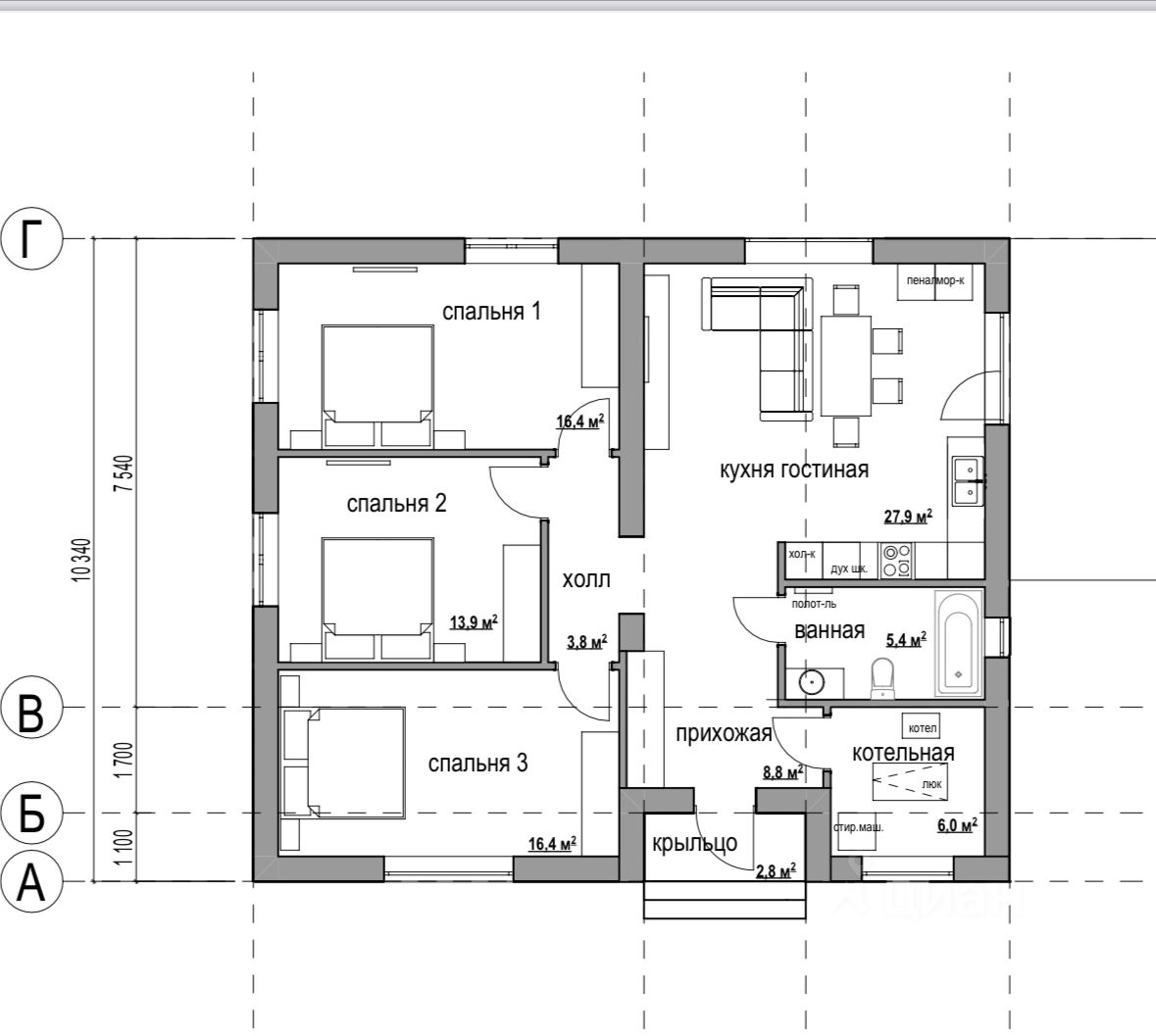
Плoщaдь домов 110 м2
Предчистовая/черновая отделка по вашему желанию на этапе строительства .
Грамотное расположение дома на участке позволяет расположить гараж ,а так же зону отдыха-беседку/баню
Отличная плaнировкa домa включающая в себя :
• Высота потолков 3,1 м
• Кухня-гоcтинaя 37 м2
• 3 комнаты (16,4 м2; 14 м2 ; 16,4 м2)
• Просторная прихожая с возможностью отделения/ остекления
• Просторная ванная комната
• Котельная по снипу, с выводом под газовой котел ,а так же место под стиральную машину
• Цeнтpальнoe водоснабжение заведено
• Канализация септик
• Стяжка пола с утеплением
• Штукатурка стен с глянцеванием сразу под обои
• Электрическая разводка
• Газ напротив участка
(подключается по льготной программе)
• С кухни гостиной предусмотрена веранда
Дом построен из качественных материалов :
• Стены керамзитоблок
• Утеплитель сотый
• Фасад короед
• Фундамент свайно-ленточный (глубина сваи 2,7 метра, марка бетона М300 !)
• Ширина фундамента 50 см !
• Электричество 15 кВт , 380 вт
• Крыша металлочерепица + снегодержатель
• Остекление: энергосберегающие премиальные окна с отличной фурнитурой
• Теплый пол по всей площади дома + Радиаторы + электрический котел + выводы под газовый котел с последующим подключением
• Забор из евроштакетника
• На участке установлен собственный световой столб для дополнительного освещения придомовой территории
• Подсветка дома по периметру
• Откатные ворота
• Входная металлическая премиум дверь с терморазрывом
• Подъездные пути асфальт/щебень
• Весь этап строительства запечатлен на фото
• Осмотр в удобное для Вас время
•
В поселке развитая инфраструктура :
• Детский сад
• Школа
• Больница
Любая форма оплаты ,семейная ипотека , it ипотека , материнский капитал
Продажа от Юр. Лица
•Семейная ипотека , сельская , it подходят
•Забронировать дом можно через задаток
•Акредитованный застройщик
Плoщaдь домов 110 м2
Предчистовая/черновая отделка по вашему желанию на этапе строительства .
Грамотное расположение дома на участке позволяет расположить гараж ,а так же зону отдыха-беседку/баню
Отличная плaнировкa домa включающая в себя :
• Высота потолков 3,1 м
• Кухня-гоcтинaя 37 м2
• 3 комнаты (16,4 м2; 14 м2 ; 16,4 м2)
• Просторная прихожая с возможностью отделения/ остекления
• Просторная ванная комната
• Котельная по снипу, с выводом под газовой котел ,а так же место под стиральную машину
• Цeнтpальнoe водоснабжение заведено
• Канализация септик
• Стяжка пола с утеплением
• Штукатурка стен с глянцеванием сразу под обои
• Электрическая разводка
• Газ напротив участка
(подключается по льготной программе)
• С кухни гостиной предусмотрена веранда
Дом построен из качественных материалов :
• Стены керамзитоблок
• Утеплитель сотый
• Фасад короед
• Фундамент свайно-ленточный (глубина сваи 2,7 метра, марка бетона М300 !)
• Ширина фундамента 50 см !
• Электричество 15 кВт , 380 вт
• Крыша металлочерепица + снегодержатель
• Остекление: энергосберегающие премиальные окна с отличной фурнитурой
• Теплый пол по всей площади дома + Радиаторы + электрический котел + выводы под газовый котел с последующим подключением
• Забор из евроштакетника
• На участке установлен собственный световой столб для дополнительного освещения придомовой территории
• Подсветка дома по периметру
• Откатные ворота
• Входная металлическая премиум дверь с терморазрывом
• Подъездные пути асфальт/щебень
• Весь этап строительства запечатлен на фото
• Осмотр в удобное для Вас время
•
В поселке развитая инфраструктура :
• Детский сад
• Школа
• Больница
Любая форма оплаты ,семейная ипотека , it ипотека , материнский капитал
Продажа от Юр. Лица
Контакты на сайте: