Дома продажа / Дома, Пермь, 9 750 000
Кратко
ID | 39752363 |
---|---|
Категория | Дома |
Город | Пермь |
Этажность | 2 |
Площадь общая | 194 |
Площадь участка | 6.5 |
Предлагаем вашему вниманию уникальную возможность приобрести 2-ую секцию таунхауса общей площадью 194 кв.м. на земельном участке площадью 6,5 соток.
Специальная цена — 9 750 000 рублей.
Строительные характеристики:
Фундамент: монолитная плита, обеспечивающая надежность и долговечность конструкции.
Стены: выполнены из газобетона автоклавного твердения твинблок 300 с облицовкой в стиле Баварская кладка, что придает дому эстетичный вид и отличные теплоизоляционные свойства.
Кровля: металлочерепица, устойчивая к атмосферным воздействиям.
Окна: пятикамерный профиль Exprof, обеспечивающий высокую тепло- и звукоизоляцию.
Входная дверь: с терморазрывом для дополнительной защиты от холода.
Отделка и инженерные системы: Таунхаус предлагается в отделке WHITE BOX, что позволяет вам самостоятельно реализовать свои дизайнерские идеи.
Внутри выполнены:
Межкомнатные перегородки
Улучшенная штукатурка
Полусухая стяжка
Электроразводка
Водяные теплые полы на первом этаже и радиаторы на втором этаже
Разводка труб для канализации и водоснабжения
Современная вентиляция
Автономная канализация с септиком ТОПАС
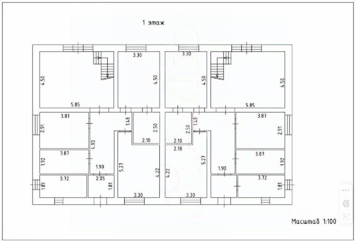
Планировка:
1 этаж:
Просторная прихожая
Три спальни, включая мастер-спальню с собственным санузлом
Котельная
Два санузла
Уютная кухня-гостиная, идеально подходящая для семейных встреч и праздников
2 этаж (мансарда): Свободное пространство для вашей фантазии! Здесь можно организовать:
Подходит под семейную ипотеку
Код пользователя: 181295
Номер в базе: 7064001
Специальная цена — 9 750 000 рублей.
Строительные характеристики:
Фундамент: монолитная плита, обеспечивающая надежность и долговечность конструкции.
Стены: выполнены из газобетона автоклавного твердения твинблок 300 с облицовкой в стиле Баварская кладка, что придает дому эстетичный вид и отличные теплоизоляционные свойства.
Кровля: металлочерепица, устойчивая к атмосферным воздействиям.
Окна: пятикамерный профиль Exprof, обеспечивающий высокую тепло- и звукоизоляцию.
Входная дверь: с терморазрывом для дополнительной защиты от холода.
Отделка и инженерные системы: Таунхаус предлагается в отделке WHITE BOX, что позволяет вам самостоятельно реализовать свои дизайнерские идеи.
Внутри выполнены:
Межкомнатные перегородки
Улучшенная штукатурка
Полусухая стяжка
Электроразводка
Водяные теплые полы на первом этаже и радиаторы на втором этаже
Разводка труб для канализации и водоснабжения
Современная вентиляция
Автономная канализация с септиком ТОПАС
Планировка:
1 этаж:
Просторная прихожая
Три спальни, включая мастер-спальню с собственным санузлом
Котельная
Два санузла
Уютная кухня-гостиная, идеально подходящая для семейных встреч и праздников
2 этаж (мансарда): Свободное пространство для вашей фантазии! Здесь можно организовать:
Подходит под семейную ипотеку
Код пользователя: 181295
Номер в базе: 7064001
Контакты на сайте: