Дома продажа / Коттеджи, Россия, Московская область, село Озерецкое, Рождественская улица, 21 447 000

Кратко

ID 39964693
Категория Коттеджи
Страна Россия
Регион Московская область
Город село Озерецкое
Улица Рождественская улица
Номер дома д.1к2
Кол.во комнат 3
Этажность 3
Материал стен блочный
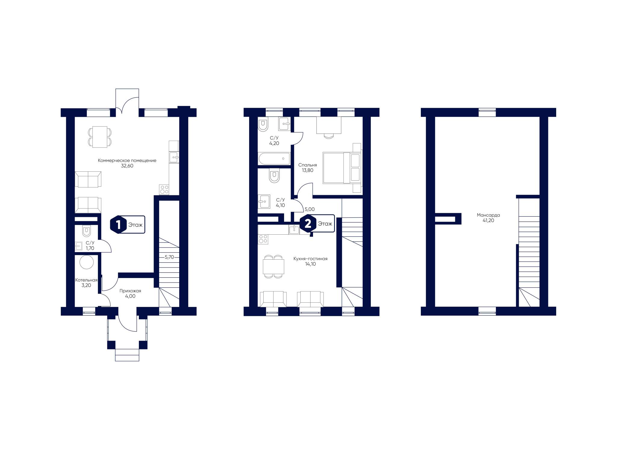
Площадь общая 139.6
Площадь участка 0.83
Рассрочка 0% на 2 года от застройщика! Продается таунхаус в квартале «Тюльпанов» жилого комплекса «Мечта». ОСНОВНЫЕ ХАРАКТЕРИСТИКИ - Общая площадь: 139.6 м - Площадь участка: 0.83 сот. - 3 этажа - 1 спальня - 3 туалетных комнаты - Высота потолка: 2.7 метра - Мансарда: 41.2 м - Коммерческое помещение на 1 этаже - 2 парковочных места - Отделка: Без отделки Коттеджный посёлок «Мечта» находится всего в 23 км от МКАД по Дмитровскому или Ленинградскому шоссе. Дорога до Москвы на автомобиле займёт 30 минут. Также можно воспользоваться общественным транспортом: автобусы ходят по расписанию, поэтому не придётся переживать из-за опозданий и задержек. До МЦД-1 «Лобня» - 15-20 минут, до станции метро «Физтех» - 30-35 минут на общественном транспорте. Инфраструктура включает в себя муниципальную школу и детские сады, кабинет врача общей практики, множество кафе и ресторанов, а также различные спортивные и детские площадки. В пешей доступности от посёлка расположены лес и три реликтовых озера - Долгое, Круглое и Нерское, а также реки Альба, Уча и Волгуша. Территория посёлка закрыта для посторонних, находится под охраной и патрулируется. На въезде расположен КПП. Камеры видеонаблюдения работают круглосуточно на всей территории посёлка. Вы и ваши дети будете чувствовать себя в безопасности. [#7838344#]

Карта

Похожие

Коттеджи
Площадь м2: 139.6//
Этаж: 0/3
Коттеджи
Площадь м2: 224.2//
Этаж: 0/3
Коттеджи
Площадь м2: 224.2//
Этаж: 0/3
Коттеджи
Площадь м2: 104//
Этаж: 0/2
Коттеджи
Площадь м2: 135.69//
Этаж: 0/3