Коммерческая / Аренда, Калуга, 401 390
Кратко
ID | 39749515 |
---|---|
Категория | Аренда |
Город | Калуга |
Этаж | 2 |
Этажность | 2 |
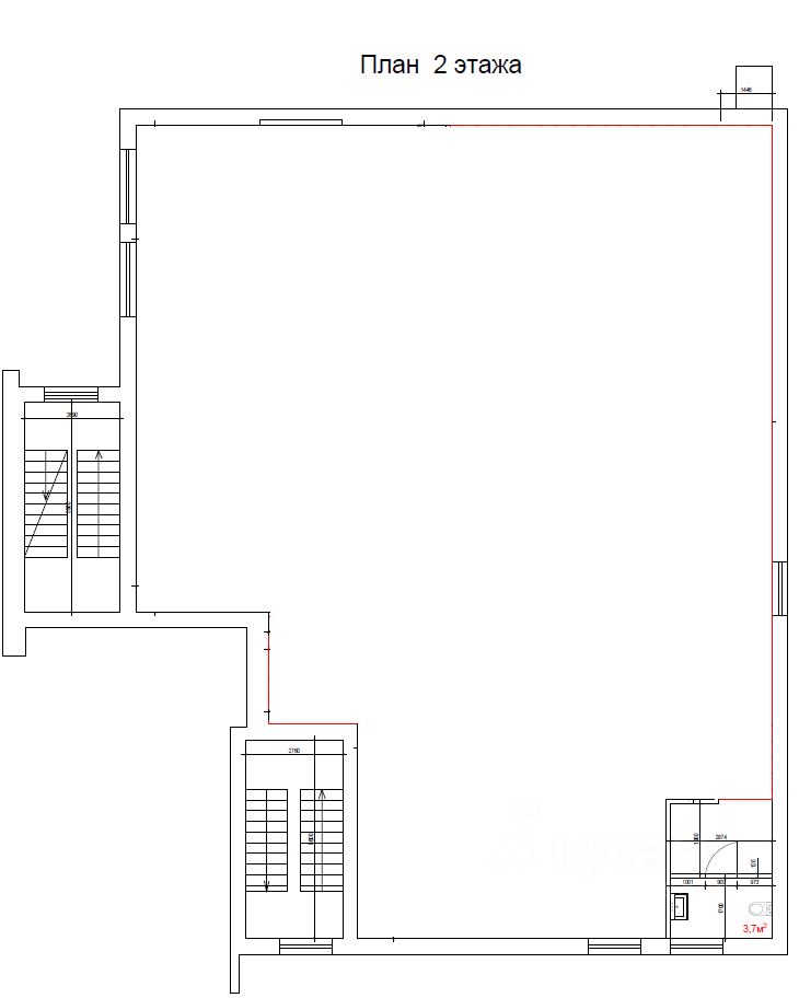
Площадь общая | 365 |
Сдается помещение на 2-ом этаже общей площадью 364,9 м2 .
Адрес: Калуга, бульвар Энтузиастов, 4А.
Дополнительно можно арендовать блоки - 20, 50, 100, 200, 300 м2.
Помещение находится в черновой отделке.
Со своей стороны мы готовы оказать всестороннюю поддержку в реализации ремонтных работ под ваши потребности.
Помещение оборудовано:
электричеством до 45 кВт;
водоснабжением;
теплоснабжением.
Для якорных магазинов будет организована точка погрузки.
Здание находится вдоль дороги, что обеспечивает отличную транспортную доступность и проходную зону. Район с очень развитой инфраструктурой, в пешей доступности находится сквер Терепец.
Помещение подходит под размещение: магазин, ПВЗ, спортивные секции, кафе, салон красоты, фотостудия, офис, даркстор и д.р.
Также имеются свободные площади по другим адресам в Москве, Московской области и Твери.
Для уточнения условий аренды просьба связываться по телефону или писать в чат.
С уважением,
УК Ритейл Редевелопмент
Адрес: Калуга, бульвар Энтузиастов, 4А.
Дополнительно можно арендовать блоки - 20, 50, 100, 200, 300 м2.
Помещение находится в черновой отделке.
Со своей стороны мы готовы оказать всестороннюю поддержку в реализации ремонтных работ под ваши потребности.
Помещение оборудовано:
электричеством до 45 кВт;
водоснабжением;
теплоснабжением.
Для якорных магазинов будет организована точка погрузки.
Здание находится вдоль дороги, что обеспечивает отличную транспортную доступность и проходную зону. Район с очень развитой инфраструктурой, в пешей доступности находится сквер Терепец.
Помещение подходит под размещение: магазин, ПВЗ, спортивные секции, кафе, салон красоты, фотостудия, офис, даркстор и д.р.
Также имеются свободные площади по другим адресам в Москве, Московской области и Твери.
Для уточнения условий аренды просьба связываться по телефону или писать в чат.
С уважением,
УК Ритейл Редевелопмент
Контакты на сайте: