Коммерческая / Аренда / Свободного назначения, Россия, Москва, Нижние Мнёвники улица, 1 000 000

Кратко

ID 39957368
Категория Свободного назначения
Страна Россия
Город Москва
Метро Терехово
Район Хорошёво-Мневники
Улица Нижние Мнёвники улица
Номер дома д.16к1
Этаж 1
Этажность 23
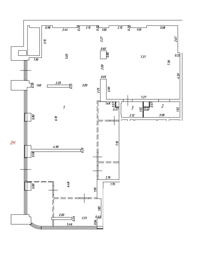
Площадь общая 210.7
Видовое, угловое помещение на первой фасадной линии, расположено в составе ЖК ОСТРОВ, квартал 2 рядом с метро и торговым центром. Площадь – 210,7 кв.м. Два входа. Помещение свободного назначения. Подходит под размещение продуктового магазина, кафе, кондитерской, салона красоты, отделения банка. Расположено в самом центре жилого комплекса, на пересечении трех кварталов ЖК. Стабильный пешеходный и автомобильный трафик. Электрическая мощность 60 кВт. Без отделки. Предоставляются арендные каникулы. Инженерные коммуникации: приточно-вытяжная общеобменная вентиляция и кондиционирование, смонтированы пожарная сигнализация, дымоудаление. В шаговой доступности от станции метро Терехово. Коммерческие условия: Арендная плата – 1 000 000 руб в месяц. Коммунальные и эксплуатационные услуги оплачиваются дополнительно. Возможность размещения вывески на фасаде, круглосуточный доступ. [#7637375#]

Карта

Похожие

Свободного назначения
Площадь м2: 210.7//
Этаж: 1/23
Свободного назначения
Площадь м2: 184//
Этаж: 1/22
Свободного назначения
Площадь м2: 130.8//
Этаж: 1/16
Свободного назначения
Площадь м2: 83.2//
Этаж: 1/21
Свободного назначения
Площадь м2: 72.5//
Этаж: 1/21