Коммерческая / Аренда / Свободного назначения, Россия, Ярославская область, Ярославль, Машиностроителей проспект, 120 000
Кратко
| ID | 39957451 |
|---|---|
| Категория | Свободного назначения |
| Страна | Россия |
| Регион | Ярославская область |
| Город | Ярославль |
| Улица | Машиностроителей проспект |
| Номер дома | д.11б |
| Этаж | 1 |
| Этажность | 2 |
| Площадь общая | 100 |
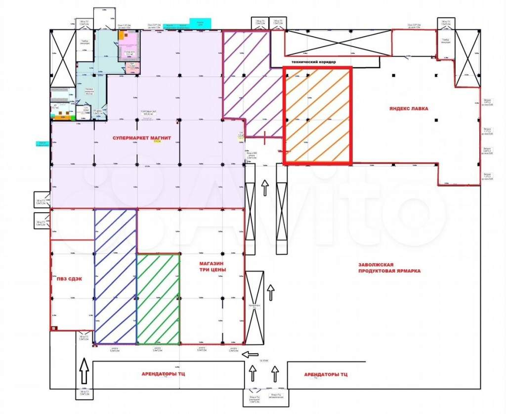
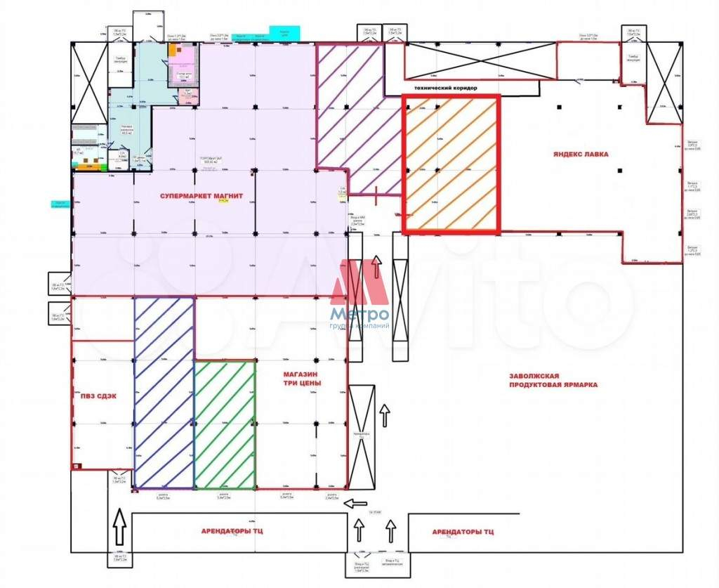
Арт. 89882380. Предлагаем в аренду помещение свободного назначения, общая площадь 100 кв.м. расположенное в зоне фермерской ярмаркив ТЦ "Заволжский" по адресу: г. Ярославль, пр-кт Машиностроителей, д. 11Б.
На планировке выделен красной рамкой. Один вход будет рядом со внутренним входом в Магнит, второв вход на заднюю сторону здания (где расположены зоны погрузки/разгрузки) .
Отличительные особенности:
Трафиковый ТЦ. В ТЦ на 1м этаже находятся Магнит, магазин Три Цены, СДЭК и Фермерский рынок, магазин Суперэконом на 2 этаже.
Напротив входной группы ТЦ остановка общественного транспорта, хороший пешеходный и автомобильный трафик, в окружении большой жилой массив.
--------------------------------------------------------------
Без комиссии, аренда от собственника!
--------------------------------------------------------------
ГК "Метро" - лидер рынка коммерческой недвижимости Ярославля. У нас самый большой портфель недвижимости и наибольшая выгрузка рекламы на отраслевых площадках.
--------------------------------------------------------------
1. Больше информации по телефону и в форме чата.
2. По запросу предоставим расширенный пакет фотографий, поэтажные планы и техническую документацию.
3. Для иногородних клиентов оперативно покажем объект по видеосвязи.
4. Приглашаем посредников к сотрудничеству на выгодных условиях.
5. Если этот объект не понравился по фотографиям и описанию - обращайтесь, предложим альтернативу.
6. Фиксируем звонки в режиме 24/7, для Вашего удобства работает контакт-центр. [#7820440#]
Карта
Похожие
Свободного назначения
Площадь м2:
70//
Этаж:
1/2
Свободного назначения
Площадь м2:
100//
Этаж:
1/2
Свободного назначения
Площадь м2:
200//
Этаж:
1/2
Свободного назначения
Площадь м2:
250//
Этаж:
1/9