Коммерческая / Аренда / Офисы, Россия, Москва, Волгоградский проспект, 507 350

Кратко

ID 39965102
Категория Офисы
Страна Россия
Город Москва
Метро Текстильщики
Улица Волгоградский проспект
Номер дома д.43к3
Кол.во комнат 9
Этаж 15
Этажность 19
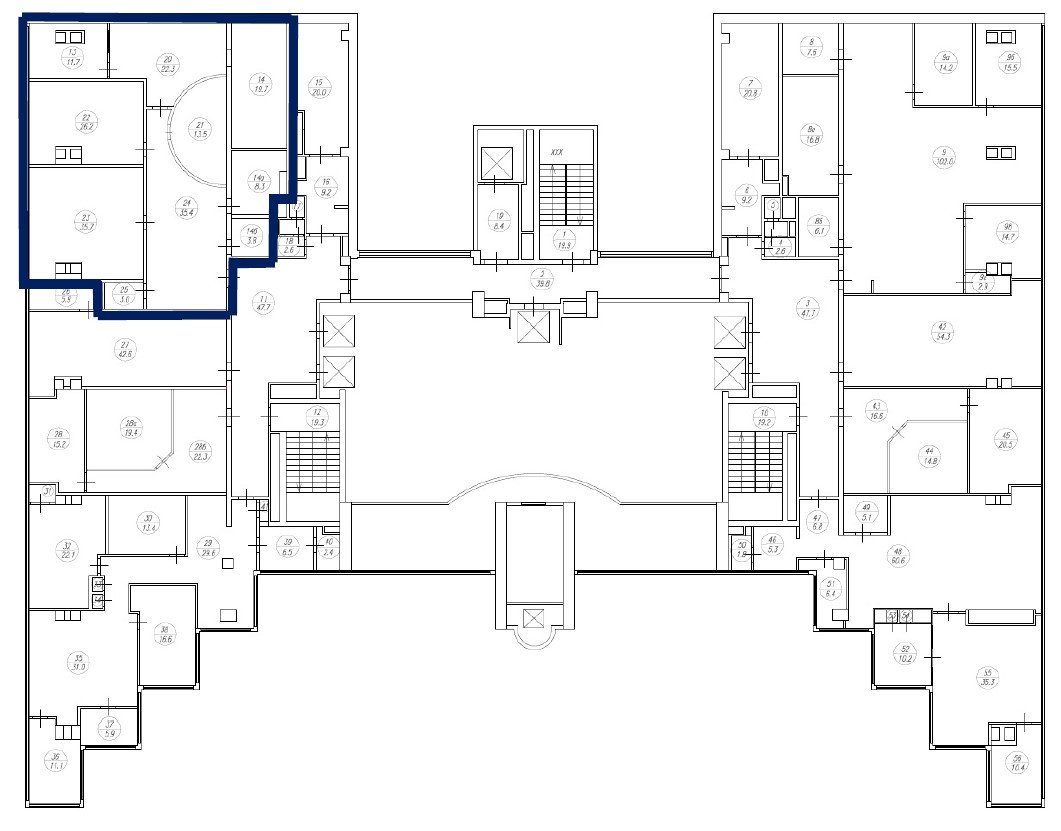
Площадь общая 201.15
Офис в аренду площадью 201.15 м2, на 15 этаже 19-этажного бизнес-центра класса B+ "АвилонПлаза" в 10 мин. пешком от м.Текстильщики. Номер налоговой объекта - 22, предоставляется юридический адрес. Высота потолков: 2.8 м. Офис предоставляется в прямую аренду, минимальный срок аренды -11 месяцев, с предоплатой за 1 месяц, пропускная система. Кабинетная планировка, на полу плитка и ковролин, одна мокрая точка. Охрана, местное кондиционирование, вентиляция офиса - приточная, центральное отопление, спринклерная система пожаротушения. Отдельная многоуровневая охраняемая парковка, бесплатные гостевые парковочные (не более трёх часов на 1 а/м). Коммерческие условия: Базовая ставка аренды - 21 600 руб. м.кв./год Эксплуатационные расходы - 5136 руб. м.кв./год Коммунальные платежи - 3 531 руб. м.кв./год [#7838671#]

Карта

Похожие

Офисы
Площадь м2: 242.82//
Этаж: 19/19
Офисы
Площадь м2: 201.15//
Этаж: 15/19
Офисы
Площадь м2: 54//
Этаж: 4/4
Офисы
Площадь м2: 118.4//
Этаж: 6/8
Офисы
Площадь м2: 30//
Этаж: 3/3