Коммерческая / Аренда / Офисы, Россия, Костромская область, поселок Островское, Советская улица, 12 399

Кратко

ID 39826125
Категория Офисы
Страна Россия
Регион Костромская область
Город поселок Островское
Улица Советская улица
Номер дома д.22
Этаж 1
Этажность 1
Площадь общая 109.2
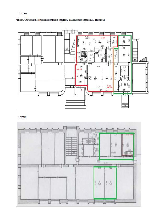
Код лота: РАД-430244. Реализуется на торгах. Предлагается к продаже на торгах право заключения договора аренды на нежилые помещения, находящееся в собственности ПАО «Сбербанк», расположенные на 1 и 2 эт. административного здания по адресу: Костромская область, р-н Островский, п. Островское, ул. Советская, д 22. Объект аренды: - неж. помещение 2-го эт. , общей площадью 58,0 кв, м, с кадастровым номером 44: 15: 120117: 243 - неж. помещение 2-го эт. , общей площадью 11,8 кв.м. , с кадастровым номером 44: 15: 120117: 275 - часть неж. помещения 1-го этажа №43, 45, 47, 48, 49, 50, общей площадью 39,4 кв.м. , (частью объекта общей площади 141,0 кв.м. с кадастровым номером 44: 15: 120117: 276) . Общая площадь объекта аренды: 109,2 кв.м. Срок аренды: 11 (Одиннадцать) месяцев с даты подписания Сторонами акта приема-передачи Объекта. Начальная цена (величина постоянной составляющей месячной арендной платы) Лота 1 - 16 439 рублей 00 копеек, в т.ч. НДС (20%) . Минимальная цена (цена отсечения аукциона) Лота 1 - 12 399 рублей 00 копеек, в т.ч. НДС (20%) . Коммунальные и эксплуатационные платежи по Объекту оплачиваются дополнительно. Местонахождение и транспортная доступность: Нежилые помещения находятся в центральной части пос. Островское, который является административным центром Островского района Костромской области, с развитой инфраструктурой. В ближайшем окружении- жилые дома, администрация, социально-бытовые объекты. В здании расположены подразделения Сбербанка, Россельхозбанка, клиентская служба СФР, страховые компании, аптека. Парковка - стихийная на территории, прилегающей к зданию. В семи минутах ходьбы находится автостанция пос. Островское. Расстояние до г. Кострома составляет 52 км. Факторы инвестиционной привлекательности: - выгодное месторасположение; хорошая транспортная и пешеходная доступность; - возможность приобретения для организации арендного бизнеса; - возможность использовать помещения под различные направления деятельности. Торги проводятся на ЭТП РАД Lot-online, код лота РАД-430244. https: //catalog. lot-online. ru/index. php?dispatch=products. view&product_id=1373970 [#7614164#]

Карта

Похожие

Офисы
Площадь м2: 109.2//
Этаж: 1/1
Офисы
Площадь м2: 67//
Этаж: 1/9
Офисы
Площадь м2: 1324//
Этаж: 2/4
Офисы
Площадь м2: 35//
Этаж: 1/25