Коммерческая / Аренда / Офисы, Тюмень, 600 000
Кратко
ID | 39781432 |
---|---|
Категория | Офисы |
Город | Тюмень |
Этаж | 1 |
Этажность | 5 |
Площадь общая | 400 |
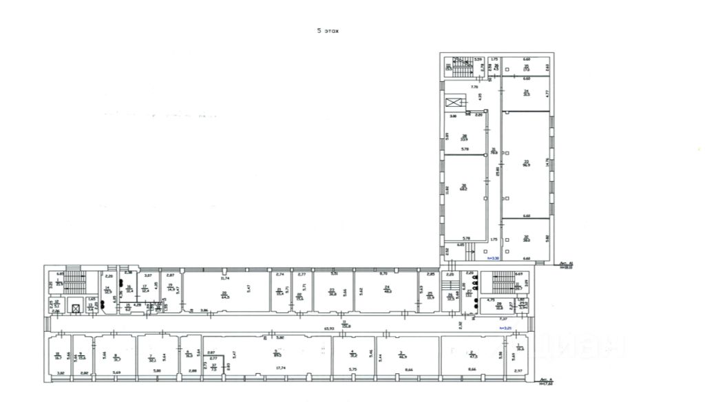
Арт. 85632436. Сдается в аренду офисное здание в центре
Общая площадь здания 7050 м²
Здание состоит из 3 корпусов А,Б,В :
Корпусы А,Б
Корпус А Б - 1 этаж- 634 кв.м
Корпус А Б - 2 этаж- 840 кв.м
Корпус А Б - 3 этаж- 1146 кв.м
Корпус А Б - 4 этаж- 1130 кв.м
Корпус А Б - 5 этаж- 1170 кв.м
Корпус В
Корпус В - 1 этаж- 960 кв.м
Корпус В - 2 этаж- 570 кв.м
Корпус В - 3 этаж- 594 кв.м
Сдаётся как все здание целиком, так и поэтажно.
Характеристики здания:
- Высота потолков 3,2 м
- Планировки кабинетного типа
- Конференц -зал
- Кабинеты для руководства с переговорными
- Готовое помещение для столовой
- 2 лифта
- Парковка
В стоимость арендной ставки входит: охрана, клининг, пожарная охрана, вывоз мусора.
Готовы оперативно организовать просмотр помещения и ответить на все интересующие Вас вопросы.
Общая площадь здания 7050 м²
Здание состоит из 3 корпусов А,Б,В :
Корпусы А,Б
Корпус А Б - 1 этаж- 634 кв.м
Корпус А Б - 2 этаж- 840 кв.м
Корпус А Б - 3 этаж- 1146 кв.м
Корпус А Б - 4 этаж- 1130 кв.м
Корпус А Б - 5 этаж- 1170 кв.м
Корпус В
Корпус В - 1 этаж- 960 кв.м
Корпус В - 2 этаж- 570 кв.м
Корпус В - 3 этаж- 594 кв.м
Сдаётся как все здание целиком, так и поэтажно.
Характеристики здания:
- Высота потолков 3,2 м
- Планировки кабинетного типа
- Конференц -зал
- Кабинеты для руководства с переговорными
- Готовое помещение для столовой
- 2 лифта
- Парковка
В стоимость арендной ставки входит: охрана, клининг, пожарная охрана, вывоз мусора.
Готовы оперативно организовать просмотр помещения и ответить на все интересующие Вас вопросы.
Контакты на сайте: