Коммерческая / Продажа / Офисы, Россия, Тверская область, Удомля, Энергетиков проспект, 9 212 320

Кратко

ID 39822625
Категория Офисы
Страна Россия
Регион Тверская область
Город Удомля
Улица Энергетиков проспект
Номер дома д.2
Этаж 1
Этажность 1
Площадь общая 151.8
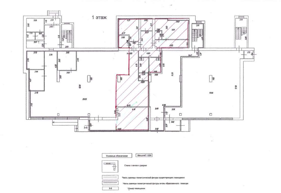
Код лота: РАД-430555. Реализуется на торгах. Предлагается к продаже на торгах помещения, находящиеся в собственности ПАО «Сбербанк», расположенные по адресу: Тверская область, Удомельский городской округ, г. Удомля, пр-т Энергетиков д. 2, помещение 3-5: 1518/3958 доли в праве собственности на нежилые помещения, общей площадью 395,8 кв.м. , с кадастровым номером 69: 48: 0080233: 3357. Указанная доля представляет собой нежилые помещения 1-го этажа, общей площадью 151,8 кв.м. Существующие ограничения (обременения) права: не зарегистрировано. Существенное условие продажи Объекта: Передача Объекта Покупателю осуществляется по акту приема-передачи, не позднее 29.12.2025 г. При этом в случае, если Продавец готов передать Объект ранее указанного срока, Покупатель обязан принять Объект в течении 15 (Пятнадцати) рабочих дней со дня получения соответствующего уведомления от Продавца, при условии поступления на счет Продавца в полном объёме денежных средств в оплату стоимости Объекта. Помещения расположены на 1-м этаже многоквартирного жилого дома 1994 года постройки, со всеми необходимыми коммуникациями. Общий вход с фасада здания. Местонахождение и транспортная доступность: Помещения находятся на 1-м этаже, часть офиса Сбербанка. Расположены на первой линии центральной улицы города проспекте Энергетиков. Соседями являются: магазины «Мир книг», ЗАГС, «Красное&Белое», салоны красоты, аптека. В ближайшем окружении: многоквартирные жилые дома, социально-культурные и торговые объекты. Транспортная и пешеходная доступность-высочайшая. Открытая парковка непосредственно перед зданием. Факторы инвестиционной привлекательности: - помещения расположены в сложившейся жилой застройке с высоким пешеходным и автомобильным трафиком; - возможность приобретения для организации арендного бизнеса; - возможность использовать помещения под различные направления деятельности: торговля, бытовые услуги, кафе и др. Торги проводятся на ЭТП РАД Lot-online, код лота РАД-430555. https: //catalog. lot-online. ru/index. php?dispatch=products. view&product_id=1392458 [#7608582#]

Карта

Похожие

Офисы
Площадь м2: 151.8//
Этаж: 1/1
10 900 000
Офисы
Площадь м2: 120//
Этаж: 1/9
Офисы
Площадь м2: 73.92//
Этаж: 5/29
Офисы
Площадь м2: 109.2//
Этаж: 2/1