Коммерческая / Продажа / Офисы, Белгородский район, 9 900 000
Кратко
ID | 39828686 |
---|---|
Категория | Офисы |
Город | Белгородский район |
Этаж | 1 |
Этажность | 1 |
Площадь общая | 310 |
Продам помещение для бизнеса 310 м.кв.
Двух этажное здание (второй этаж мансардного типа).
I Этаж - 254,02 м.кв
тамбур 2,96 м.кв., гардероб/касса 8,5 м.кв., вестибюль 18,34 м.кв.,
помещение персонала/прачечная 8,8 м.кв,
раздевалка 22,92 м.кв., комната отдыха 23,68 м.кв.,
Бар 50,44 м.кв., кладовая 9,52 м.кв.,
сан узел 7,07 м.кв, кухня 7,27 м.кв, помывочная 33,13 м.кв.,
парильная 12,1 м.кв., топочная 6,34 м.кв., летнее кафе 35,51 м.кв.,
поленница 1,85 м.кв., инвентарная 1,84 м.кв., тех помещение 3,75 м.кв.
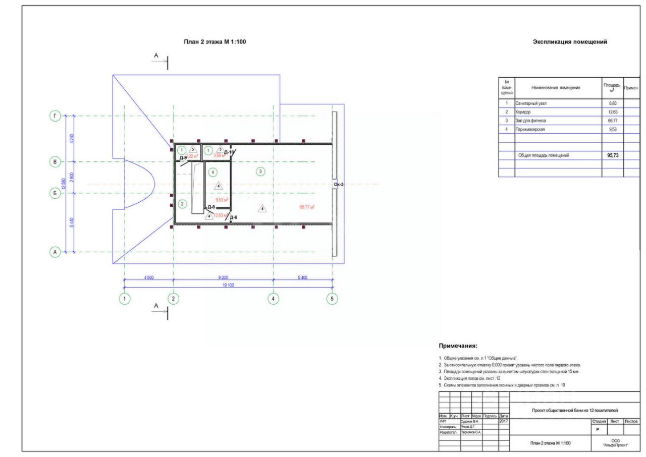
II Этаж - 123,73 м.кв
сан узел 6,8 м.кв., коридор 12,63 м.кв., зал 66,77 м.кв, кабинет 9,53 м.кв.,подсобное помещение 28 м.кв.
Итого 377,75 м.кв.
Есть подключенные по договору все коммуникации, в том числе:
- газ 33 тыс куб/ год; 12 куб м /час - по договору лимиты
центральный газопровод (два двухконтурных котла по 40 кВт,
в парилке установленная коммерческая печь "Ялта 35К")
- электроэнергия 45 кВт (на эту мощность заключён договор)
- водоснабжение центральное ( есть договор с Белводоканалом)
- канализация центральная
- охранная сигнализация, пожарная сигнализация
Впереди и сзади здания есть свои площадки (барбекю, шашлычница, есть место для установки сезонного "летника", уличного бассейна).
Парковка собственная.
В здании установлены телевизоры, стиральная машинка.
Код пользователя: 189769
Номер в базе: 7368702
Двух этажное здание (второй этаж мансардного типа).
I Этаж - 254,02 м.кв
тамбур 2,96 м.кв., гардероб/касса 8,5 м.кв., вестибюль 18,34 м.кв.,
помещение персонала/прачечная 8,8 м.кв,
раздевалка 22,92 м.кв., комната отдыха 23,68 м.кв.,
Бар 50,44 м.кв., кладовая 9,52 м.кв.,
сан узел 7,07 м.кв, кухня 7,27 м.кв, помывочная 33,13 м.кв.,
парильная 12,1 м.кв., топочная 6,34 м.кв., летнее кафе 35,51 м.кв.,
поленница 1,85 м.кв., инвентарная 1,84 м.кв., тех помещение 3,75 м.кв.
II Этаж - 123,73 м.кв
сан узел 6,8 м.кв., коридор 12,63 м.кв., зал 66,77 м.кв, кабинет 9,53 м.кв.,подсобное помещение 28 м.кв.
Итого 377,75 м.кв.
Есть подключенные по договору все коммуникации, в том числе:
- газ 33 тыс куб/ год; 12 куб м /час - по договору лимиты
центральный газопровод (два двухконтурных котла по 40 кВт,
в парилке установленная коммерческая печь "Ялта 35К")
- электроэнергия 45 кВт (на эту мощность заключён договор)
- водоснабжение центральное ( есть договор с Белводоканалом)
- канализация центральная
- охранная сигнализация, пожарная сигнализация
Впереди и сзади здания есть свои площадки (барбекю, шашлычница, есть место для установки сезонного "летника", уличного бассейна).
Парковка собственная.
В здании установлены телевизоры, стиральная машинка.
Код пользователя: 189769
Номер в базе: 7368702
Контакты на сайте: