Коммерческая / Продажа / Склад, Россия, Московская область, Подольск, Коммунальная улица, 161 819 200

Кратко

ID 39930872
Категория Склад
Страна Россия
Регион Московская область
Город Подольск
Улица Коммунальная улица
Номер дома д.44
Этаж 1
Этажность 2
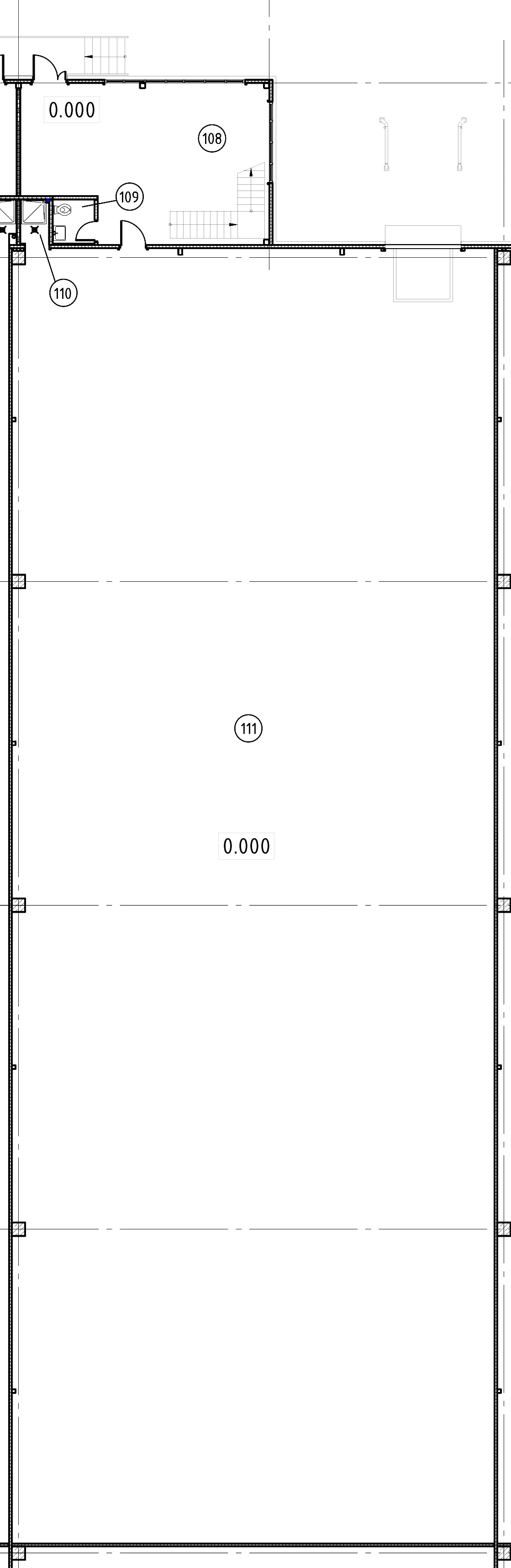
Площадь общая 1011.37
Продается новое готовое к заезду производственно-складское помещение вблизи МКАД в промышленном парке INDUSTRIAL CITY Коледино. Планировочное решение включает в себя пространство для производства, склад или логистику 901,44 кв.м, а также офисную часть 109,93 кв.м. Объект расположен в южном направлении с выездом на Симферопольское шоссе (М-2). Расстояние от МКАД — 24 км. Координаты: 55.373194, 37.575127 Продажа осуществляется напрямую от собственника парка, что гарантирует отсутствие каких-либо комиссий и скрытых платежей! Формат Base. Блок D, Бокс 14. ОСНОВНЫЕ ХАРАКТЕРИСТИКИ: - Класс: A - Температура: Сухой склад - Автоматическая спринклерная система пожаротушения - Высота: 8 м - Нагрузка на пол: 5 т/кв.м - Высококачественные бетонные полы с антипылевым покрытием и упрочняющим слоем - Сетка колонн: 12x24 - Ворота: докового типа КОММУНИКАЦИИ: - Электричество: 25 кВт (возможно увеличение мощности) - Вентиляция: приточно-вытяжная - Водоснабжение, канализация - Индивидуальные приборы учета ИНФРАСТРУКТУРА: - Парковки для транспорта: для грузовых авто — 1 место, для легкового авто — 3 места - Доступ к производственно-складским помещениям 24/7 - Охраняемая территория - Видеонаблюдение - Скоростной интернет и телефония ДОПОЛНИТЕЛЬНО: - Собственная профессиональная управляющая компания - Клининг - Консьерж-сервис - Мобильное приложение - Маркетплейс услуг - Кафе на территории - Зоны отдыха и спортивные площадки Готовы предоставить подробную информацию и организовать просмотр! [#7477099#]

Карта

Похожие

Склад
Площадь м2: 969.13//
Этаж: 1/2
Склад
Площадь м2: 1011.37//
Этаж: 1/2
Склад
Площадь м2: 969.13//
Этаж: 1/2