Коммерческая, Томск, 8 000 000
Кратко
ID | 39735579 |
---|---|
Категория | Коммерческая |
Город | Томск |
Этаж | 1 |
Этажность | 3 |
Площадь общая | 50 |
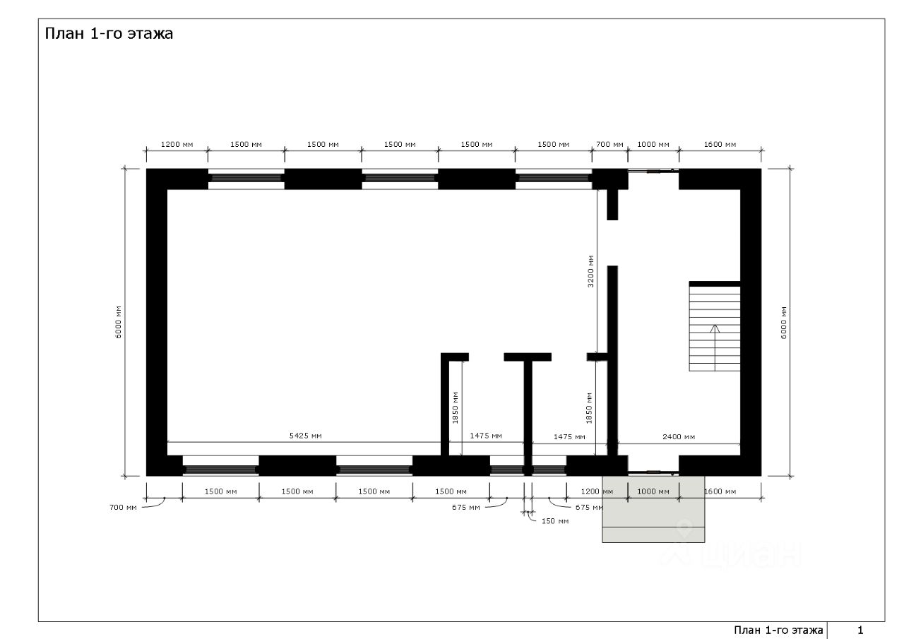
Продается помещение 50 м2 1-й этаж, 2 отдельных входа, первая линия, в Отдельно Стоящем Здании 3х этажном (нежилое)
- асфальтированная стоянка перед домом
- отдельная парковка (на заднем дворе на 2 автомобиля)
- 2 отдельных выхода (вход с улицы и со двора)
- 1-й этаж 50 м2 (единая площадь + санузел)
- высота потолков 2.7 метра
- свет 15кв
- центральное отопление
- выполнен ремонт
Инфраструктура:
Средняя общеобразовательная школа 16 - 200 метров
Детский садик 2 шт - 200 метров
Спортивный комплекс "Юность" - 200 метров
Спортивный стадион, каток, спорт площадка 2 шт - 200 метров
Прогулочная набережная р. Томь - 500 метров
Магазины, Аптеки, ПВЗ в шаговой доступности
Центральный рынок - 500 метров
Остановки общественного транспорта - 500 метров
Помещение отлично подойдет для:
- торговая площадь
- частный кабинет.
- салон красоты.
- пункт приема-выдачи заказов
Дополнительные фото по запросу
Возможно проведение онлайн показа.
Помещение Продается по ДДУ, идет реконструкция здания, срок сдачи 12 месяцев. Парковочное место в подарок.
По документам нежилое.
Продажа от собственника, юридическое лицо. Торг
- асфальтированная стоянка перед домом
- отдельная парковка (на заднем дворе на 2 автомобиля)
- 2 отдельных выхода (вход с улицы и со двора)
- 1-й этаж 50 м2 (единая площадь + санузел)
- высота потолков 2.7 метра
- свет 15кв
- центральное отопление
- выполнен ремонт
Инфраструктура:
Средняя общеобразовательная школа 16 - 200 метров
Детский садик 2 шт - 200 метров
Спортивный комплекс "Юность" - 200 метров
Спортивный стадион, каток, спорт площадка 2 шт - 200 метров
Прогулочная набережная р. Томь - 500 метров
Магазины, Аптеки, ПВЗ в шаговой доступности
Центральный рынок - 500 метров
Остановки общественного транспорта - 500 метров
Помещение отлично подойдет для:
- торговая площадь
- частный кабинет.
- салон красоты.
- пункт приема-выдачи заказов
Дополнительные фото по запросу
Возможно проведение онлайн показа.
Помещение Продается по ДДУ, идет реконструкция здания, срок сдачи 12 месяцев. Парковочное место в подарок.
По документам нежилое.
Продажа от собственника, юридическое лицо. Торг
Контакты на сайте: