Новостройки / 2-комн., Россия, Краснодарский край, Краснодар, Старокубанская улица, 11 297 400

Кратко

ID 39798589
Категория 2-комн.
Страна Россия
Регион Краснодарский край
Город Краснодар
Улица Старокубанская улица
Номер дома д.2/23
Кол.во комнат 2
Этаж 18
Этажность 18
Материал стен кирпично-монолитный
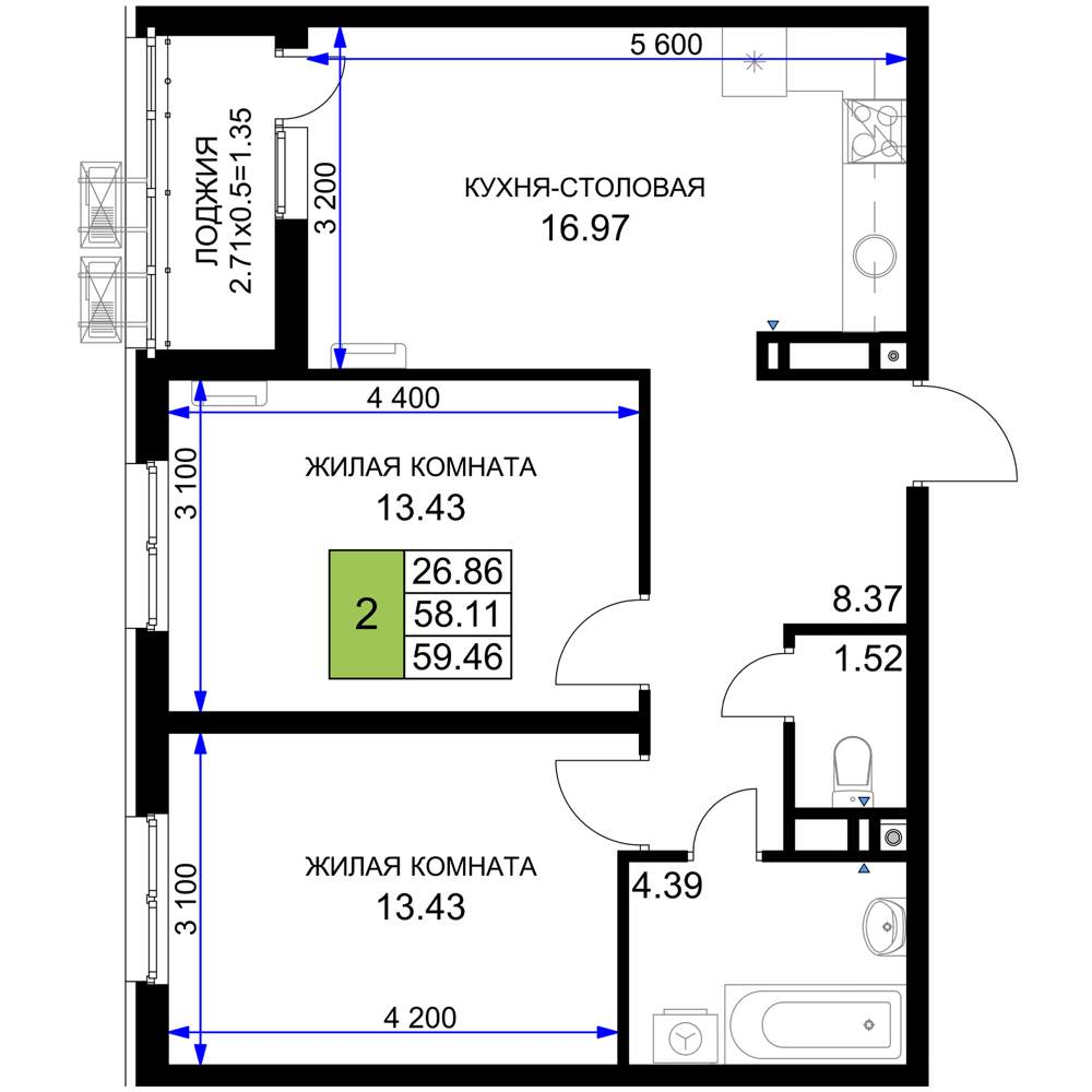
Площадь общая 59.46
Площадь жилая 26.86
Площадь кухни 16.97
Новостройка
Продается 2-комн. квартира, площадью 59.46 м2 в монолитно-кирпичной новостройке. Возможен вариант покупки с использованием ипотечных средств, есть рассрочка, возможна покупка с использованием материнского капитала, есть военная ипотека. Жилая площадь 26.86 м2, кухня 16.97 м2, предчистовая отделка. Квартира располагается на 18 этаже 18-этажного дома в ЖК Фонтаны. Застройщик - ГК ССК, сдача дома - IV квартал 2026 года, высота потолков 2.82 м. Дом оборудован пассажирским лифтом, закрытая территория. Отдельная многоуровневая парковка, парковка охраняется. Обеспечение безопасности: видеонаблюдение, противопожарная система. Инфраструктура: детский сад, детские площадки, спортивные площадки, места для отдыха, супермаркет, рестораны, фитнес-центр, пункты бытового обслуживания, коммерческие объекты. Жилой комплекс «Фонтаны» - дом клубного типа. Преимущество заключается в продуманном ландшафте дворов, круглосуточно охраняемой территории, системе видеонаблюдения во дворе. Также для удобства жителей проведен Wi-Fi во дворе, оборудованы безопасные и современные детские площадки, зоны отдыха. «Фонтаны» - уникальный, неповторимый жилой комплекс, воплощающий оригинальные и креативные решения дизайнеров и архитекторов. Дома округлой форме - это придает им легкости, несмотря на массивность постройки. ЖК «Фонтаны» расположен в микрорайоне Черёмушки. Отличная транспортная развязка позволяет быстро и с комфортом добраться до центра, а большое количество зеленых насаждений и парков дает возможность гулять с детьми и наслаждаться прекрасным видом на Кубань. Аккредитованные банки: Сбербанк, Альфа-Банк, ВТБ, Банк Уралсиб, РОССИЯ, Абсолют Банк, Металлинвестбанк, РНКБ, ПСБ, Кубань Кредит, Банк ВБРР, Россельхозбанк. Позвоните и узнайте условия покупки прямо сейчас! [#7569219#]

Карта

Похожие

2-комн.
Площадь м2: 57.18/27.82/15.87
Этаж: 18/18
2-комн.
Площадь м2: 55.86/24.79/17.2
Этаж: 10/18
2-комн.
Площадь м2: 59.46/26.86/16.97
Этаж: 7/18
2-комн.
Площадь м2: 65.27/36.3/6.02
Этаж: 16/18
2-комн.
Площадь м2: 65.27/36.3/6.02
Этаж: 17/18