Новостройки / 1-комн., Россия, Москва, Очаковское шоссе, 21 334 569

Кратко

ID 39705666
Категория 1-комн.
Страна Россия
Город Москва
Метро Аминьевская
Район Очаково-Матвеевское
Улица Очаковское шоссе
Номер дома д.1
Кол.во комнат 1
Этаж 3
Этажность 4
Материал стен монолит
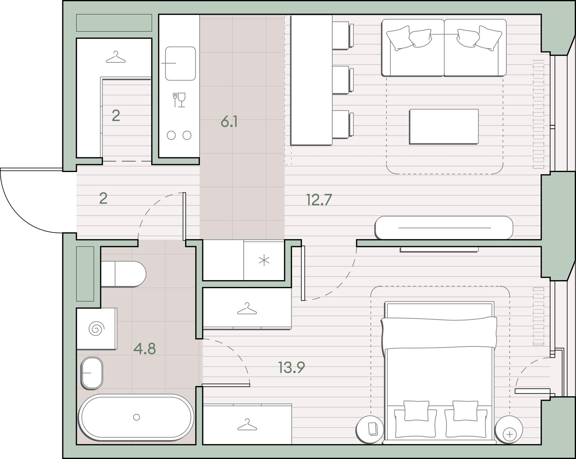
Площадь общая 41.5
Площадь жилая 26.6
Площадь кухни 6.1
Новостройка
Продается 1-комн. квартира, площадью 41.5 м2 в монолитной новостройке в 12 мин. пешком от м. Аминьевская, район города - Очаково-Матвеевское. Возможен вариант покупки с использованием ипотечных средств, есть рассрочка. Жилая площадь 26.6 м2, кухня 6.1 м2, квартира без отделки, комнаты изолированные. Квартира располагается на 3 этаже 4-этажного дома в ЖК Среда на Лобачевского. Застройщик - Среда, сдача дома - IV квартал 2027 года, высота потолков 2.92 м. Дом оборудован пассажирским лифтом. Подземная парковка. Инфраструктура: детские площадки, спортивные площадки. «Среда на Лобачевского» полностью соответствует критериям современного жилого пространства. Взяв за основу рациональный подход, мы гармонично соединили дизайн, актуальные тренды и функциональность. Продуманный современный экстерьер и функциональные планировки внутри, приватные пространства и разнообразные досуговые зоны для каждого члена семьи - все это «Среда на Лобачевского». Район отлично развит и наполнен жизнью, здесь уже есть вся необходимая инфраструктура- детские сады, школы, медучреждения, торговые центры, благоустроены парки для прогулок и отдыха, удобен и легкодоступен городской транспорт. Рядом расположены учебные корпуса крупных университетов - МГУ, МГИМО и РАНХиГС. Школы и детские сады в районе занимают высокие позиции в городских рейтингах, поэтому вам не придется беспокоиться о качестве образования детей. Как и об отдыхе: поблизости расположены живописные пруды, реки и парки. Это Парк Олимпийской деревни, Парк имени 50-летия Октября, Мещерский парк и Очаковские пруды. Теперь поставить галочки в еженедельном чек-листе «спорт-прогулки-встречи с друзьями» можно, не покидая любимый район. Особое внимание в проекте уделяется созданию функциональных пространств не только внутри дома, но и за его пределами. В ландшафтном парке «Среды на Лобачевского» расположены крытые зоны для спокойного времяпровождения, места для активного отдыха и спорта, коворкинг, соседский комьюнити-центр, водные объекты. -Ландшафтный парк во дворе. -Водный сад с зонами отдыха. -Зоны коворкинга. -Дизайнерские гранд-лобби. -Бесключевой доступ. -Подземный паркинг. СПЕЦ. ПРЕДЛОЖЕНИЕ! Рассрочка с платежом 200 000 руб. /мес. Специальная программа рассрочки для покупки квартир в корпусах 5.5-5.8. Условия программы: Первый взнос: 30% Ежемесячный платеж: 200 000 рублей (фиксированный на весь срок) Срок: 18 месяцев Предложение действует на ограниченный пул квартир. Аккредитованные банки: Совкомбанк, Альфа-Банк, Банк ДОМ. РФ, Банк ВТБ, Т-Банк, МКБ Позвоните и узнайте условия покупки прямо сейчас! [#7419003#]

Карта

Похожие

1-комн.
Площадь м2: 35.3/21.1/5.5
Этаж: 10/13
1-комн.
Площадь м2: 39.9/24.6/6
Этаж: 9/13
1-комн.
Площадь м2: 48.5/33/5.2
Этаж: 9/13
1-комн.
Площадь м2: 39.2/20.9/5
Этаж: 2/13
1-комн.
Площадь м2: 41.5/26.6/6.1
Этаж: 3/4