Новостройки / 2-комн., Россия, Ленинградская область, деревня Малое Верево, жилой комплекс Верево-Сити, 5 992 191
Кратко
| ID | 39964739 |
|---|---|
| Категория | 2-комн. |
| Страна | Россия |
| Регион | Ленинградская область |
| Город | деревня Малое Верево |
| Улица | жилой комплекс Верево-Сити |
| Номер дома | д.к2 |
| Кол.во комнат | 2 |
| Этаж | 1 |
| Этажность | 4 |
| Площадь общая | 54.13 |
| Площадь жилая | 25.22 |
| Площадь кухни | 12.2 |
| Новостройка |
Продается 2-комн. квартира, площадью 54.13 м2 в малоэтажной. Возможен вариант покупки с использованием ипотечных средств, возможна покупка с использованием материнского капитала, есть военная ипотека.
Жилая площадь 25.22 м2, кухня 12.2 м2.
Квартира располагается на 1 этаже 4-этажного дома в ЖК Верево Сити.
Застройщик - Строй Бизнес Групп специализированный застройщик, сдача дома - II квартал 2025 года, закрытая территория.
Парковка автомобилей - наземная, парковка охраняется. Обеспечение безопасности: видеонаблюдение. Инфраструктура: школа, детский сад, поликлиника, детские площадки, спортивные площадки, места для отдыха, супермаркет.
Для бронирования конкретной квартиры звоните по номеру телефона в объявлении.
ЖК Верево Сити - это современный городской жилой квартал малоэтажной застройки.
В 10-ти четырехэтажных корпусах сможет поселиться 1171 семья. Дома располагаются блоками, образуя уютные закрытые и безопасные дворы с большим количеством зеленых насаждений и с зонами отдыха для взрослых и детей.
В ЖК Верево Сити самое низкое ценовое предложение в Ленинградской области и пригородах Санкт-Петербурга, что позволит вам приобрести жилье большей площади, нежели в других жилых комплексах.
Отделка - черновая.
Комфортная среда для жизни:
- малоэтажные красивые здания современной архитектуры, с большой площадью остекления
- обособленная территория
- продуманные планировки, как привычные одно- и двухкомнатные квартиры, так и европланировки
- небольшая плотность населения: комплекс располагается на 6,5 га земли
- полная внутренняя инфраструктура, которая позволит жить с комфортом
Позвоните и узнайте условия покупки прямо сейчас!
Аккредитованные банки: ПАО Сбербанк
Позвоните и узнайте условия покупки прямо сейчас! [#6019378#]
Карта
Похожие
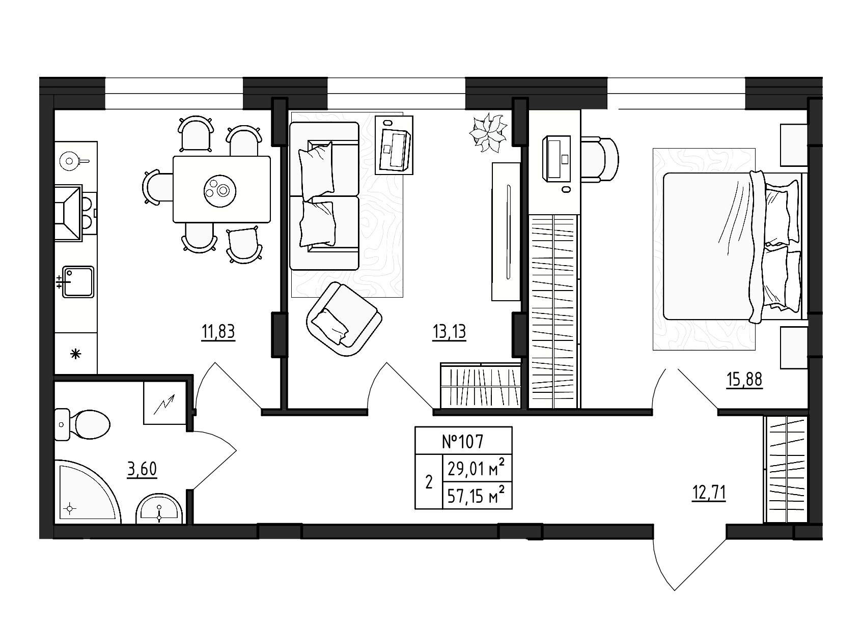
2-комн.
Площадь м2:
57.15/29.01/11.83
Этаж:
1/4
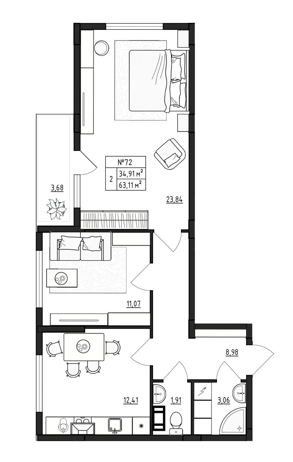
2-комн.
Площадь м2:
63.11/34.91/12.41
Этаж:
4/4
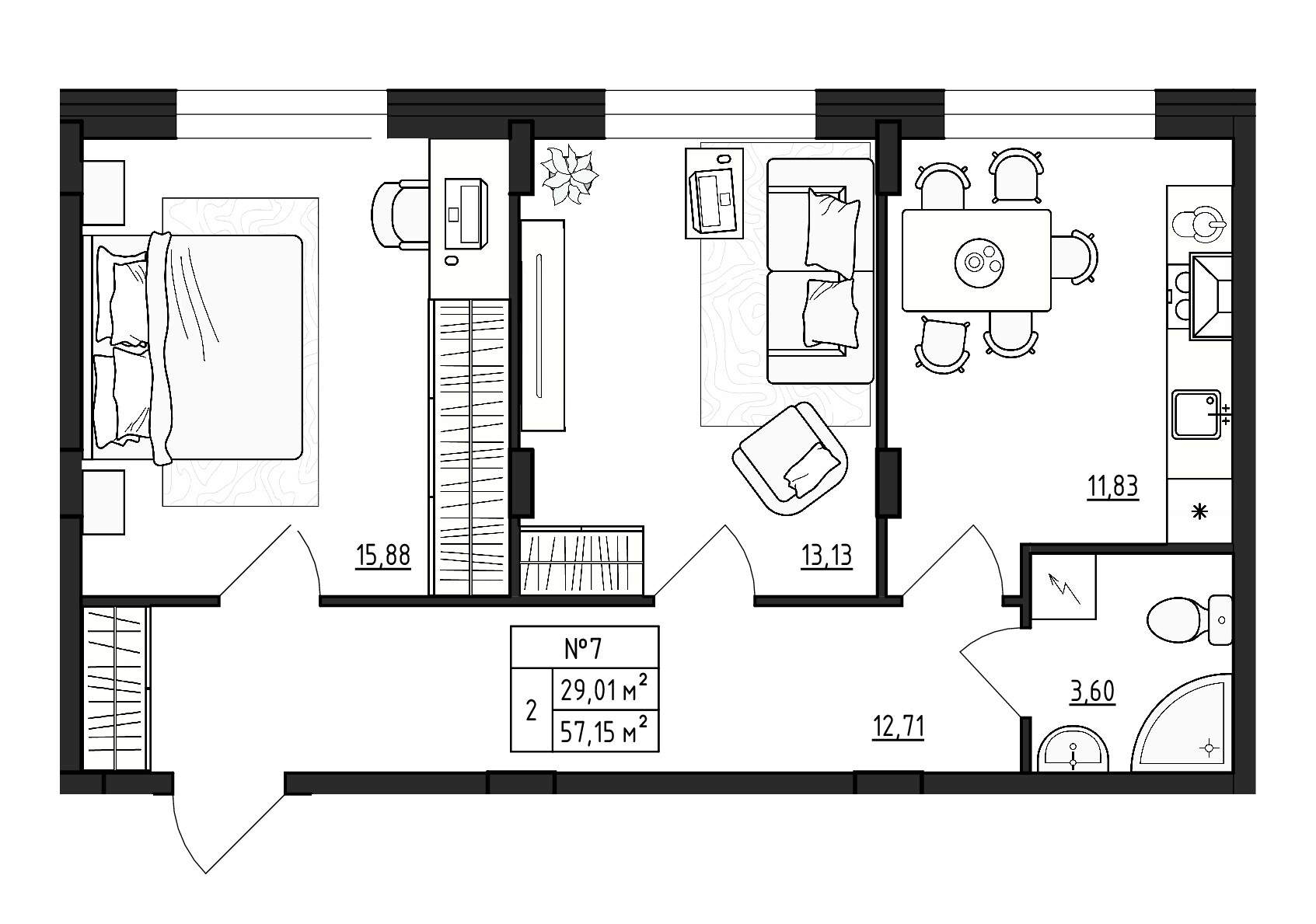
2-комн.
Площадь м2:
57.15/29.01/11.83
Этаж:
1/4
2-комн.
Площадь м2:
57.15/29.01/11.83
Этаж:
1/4
2-комн.
Площадь м2:
54.13/25.22/12.2
Этаж:
1/4