Новостройки / 3-комн., Россия, Краснодарский край, Краснодар, Старокубанская улица, 15 706 500

Кратко

ID 39815956
Категория 3-комн.
Страна Россия
Регион Краснодарский край
Город Краснодар
Улица Старокубанская улица
Номер дома д.2/23
Кол.во комнат 3
Этаж 9
Этажность 18
Материал стен кирпично-монолитный
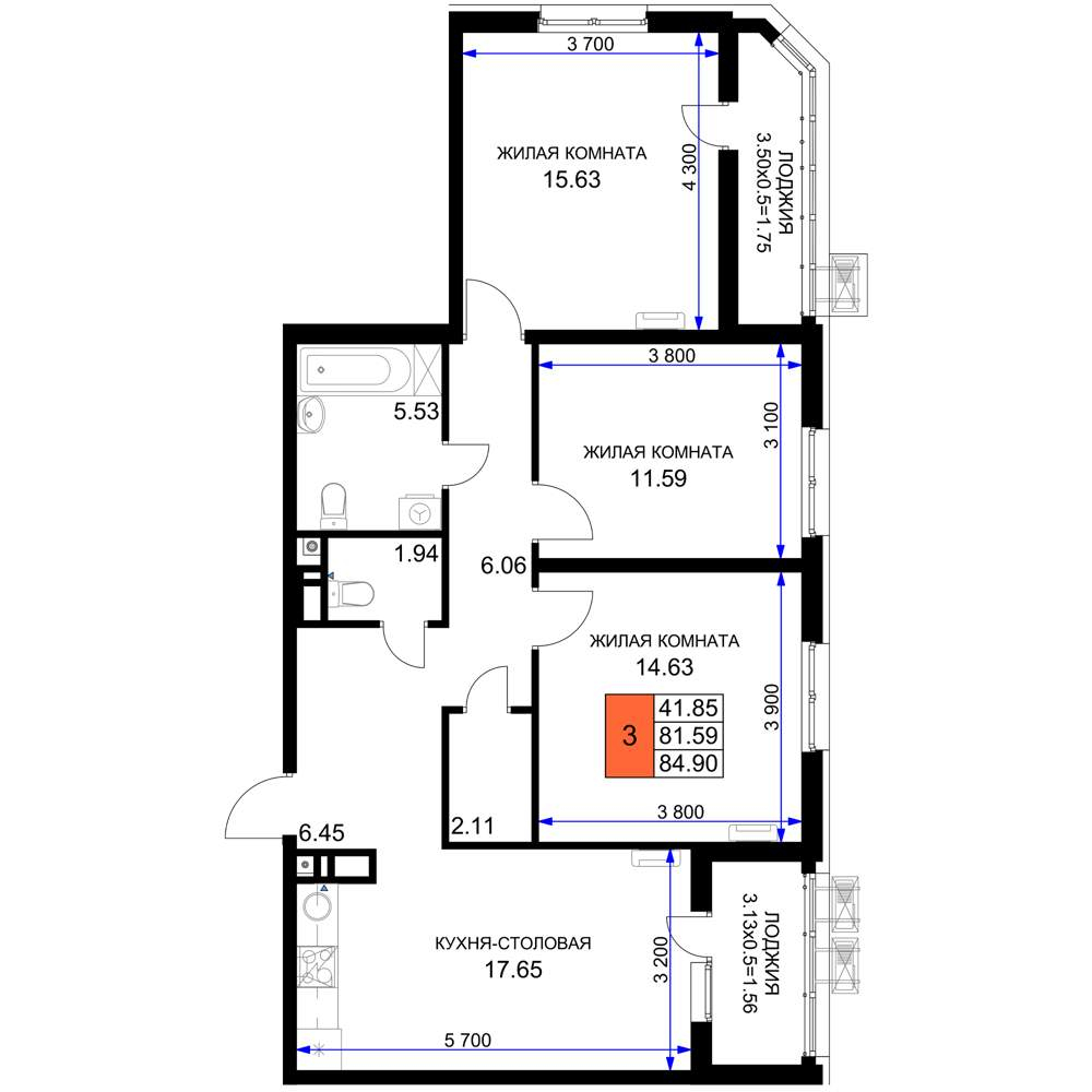
Площадь общая 84.9
Площадь жилая 41.85
Площадь кухни 17.65
Новостройка
Продается 3-комн. квартира, площадью 84.9 м2 в монолитно-кирпичной новостройке. Возможен вариант покупки с использованием ипотечных средств, есть рассрочка, возможна покупка с использованием материнского капитала, есть военная ипотека. Жилая площадь 41.85 м2, кухня 17.65 м2, предчистовая отделка. Квартира располагается на 9 этаже 18-этажного дома в ЖК Фонтаны. Застройщик - ГК ССК, сдача дома - IV квартал 2026 года, высота потолков 2.82 м. Дом оборудован пассажирским лифтом, закрытая территория. Отдельная многоуровневая парковка, парковка охраняется. Обеспечение безопасности: видеонаблюдение, противопожарная система. Инфраструктура: детский сад, детские площадки, спортивные площадки, места для отдыха, супермаркет, рестораны, фитнес-центр, пункты бытового обслуживания, коммерческие объекты. Жилой комплекс «Фонтаны» - дом клубного типа. Преимущество заключается в продуманном ландшафте дворов, круглосуточно охраняемой территории, системе видеонаблюдения во дворе. Также для удобства жителей проведен Wi-Fi во дворе, оборудованы безопасные и современные детские площадки, зоны отдыха. «Фонтаны» - уникальный, неповторимый жилой комплекс, воплощающий оригинальные и креативные решения дизайнеров и архитекторов. Дома округлой форме - это придает им легкости, несмотря на массивность постройки. ЖК «Фонтаны» расположен в микрорайоне Черёмушки. Отличная транспортная развязка позволяет быстро и с комфортом добраться до центра, а большое количество зеленых насаждений и парков дает возможность гулять с детьми и наслаждаться прекрасным видом на Кубань. Аккредитованные банки: Сбербанк, Альфа-Банк, ВТБ, Банк Уралсиб, РОССИЯ, Абсолют Банк, Металлинвестбанк, РНКБ, ПСБ, Кубань Кредит, Банк ВБРР, Россельхозбанк. Позвоните и узнайте условия покупки прямо сейчас! [#7598095#]

Карта

Похожие

3-комн.
Площадь м2: 84.9/41.85/17.65
Этаж: 9/18
3-комн.
Площадь м2: 84.9/41.85/17.65
Этаж: 16/18
3-комн.
Площадь м2: 84.9/41.85/17.65
Этаж: 17/18
3-комн.
Площадь м2: 84.9/41.85/17.65
Этаж: 4/18
3-комн.
Площадь м2: 84.9/41.85/17.65
Этаж: 13/18