Продажа квартир / 1-комн., Россия, Московская область, пгт. Сабурово, Садовая улица, 10 218 208

Кратко

ID 39742151
Категория 1-комн.
Страна Россия
Регион Московская область
Город пгт. Сабурово
Метро Пятницкое шоссе
Улица Садовая улица
Номер дома д.18
Кол.во комнат 1
Этаж 5
Этажность 5
Материал стен кирпичный
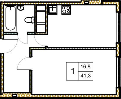
Площадь общая 41.6
Площадь жилая 29.12
Дом СДАН! Ключи после сделки! Продажа по ДКП от ЗАСТРОЙЩИКА! Семейная ипотека/ военная ипотека / сертификаты / АйтиИпотека. Квартира с РЕМОНТОМ (возможны все виды отделки: без ремонта/ предчистовая или с ремонтом) уточняйте в отделе продаж! Новое Замитино - это камерный жилой комплекс, кирпичные дома, закрытая территория и сложившаяся инфраструктура. Комплекс расположен на северо-западе Московской области, на территории Митинского лесопарка и Захарьинской поймы. Чистый воздух и развитая инфраструктура, комфортное расположение в окружении природы. Выход из ЖК в лесопарковую зону (для пеших и велопрогулок/барбекю) . - 15 минут до метро Пятницкое шоссе - 17 минут до МЦД Опалиха - Кирпичные 5-этажные дома - Наличие лифтов (грузо-пассажирский) - Коммунальные платежи от 2-х до 3,7 т.р. Способы покупки: СЕМЕЙНАЯ ИПОТЕКА до 6% годовых / Айти ипотека ИПОТЕКА стандартная / военная ипотека/ все виды сертификатов/ рассрочка Возможно приобретение под любую программу кредитования! Получить расчет за 5 минут Электронная регистрация сделок! Сохраните в избранные или лучше звоните прямо сейчас и подберем Вам лучший вариант! [#7467185#]

Карта

Похожие

1-комн.
Площадь м2: 35.8/25.06/
Этаж: 5/5
1-комн.
Площадь м2: 36.3/25.41/
Этаж: 5/5
1-комн.
Площадь м2: 36.3/25.41/
Этаж: 5/5
1-комн.
Площадь м2: 41.6/29.12/
Этаж: 5/5
1-комн.
Площадь м2: 35.6/24.92/
Этаж: 5/5