Продажа квартир / 1-комн., Тюмень, 5 990 000
Кратко
ID | 39817925 |
---|---|
Категория | 1-комн. |
Город | Тюмень |
Кол.во комнат | 1 |
Этаж | 7 |
Этажность | 9 |
Материал стен | кирпич |
Площадь общая | 48 |
Площадь жилая | 20 |
Площадь кухни | 25 |
Я - собственник. Продается полностью укомплектованная евро двушка, квартира тёплая, светлая (солнечная сторона).
Заезжай и живи или сдавай в аренду. Остается вся мебель, техника и текстиль.
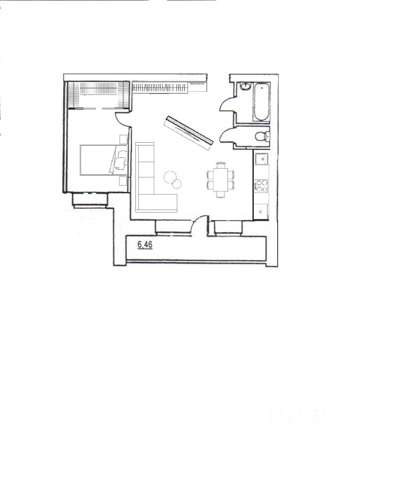
Общая площадь квартиры с лоджией - 51 кв м
Кухня-гостиная 29 кв м
Спальня - 15 кв м
Большая утепленная лоджия - 6,5 кв м.
Сан. узел раздельный (есть проточный водонагреватель).
В спальне большая гардеробная.
Дом кирпичный, своя газовая котельная, что значительно экономит на коммунальных платежах.
Пешком 10 минут до школы 13 и детского сада 92. Во дворе магазины, аптеки, салоны, детские площадки. До центра 10-15 минут на автомобиле.
Заезжай и живи или сдавай в аренду. Остается вся мебель, техника и текстиль.
Общая площадь квартиры с лоджией - 51 кв м
Кухня-гостиная 29 кв м
Спальня - 15 кв м
Большая утепленная лоджия - 6,5 кв м.
Сан. узел раздельный (есть проточный водонагреватель).
В спальне большая гардеробная.
Дом кирпичный, своя газовая котельная, что значительно экономит на коммунальных платежах.
Пешком 10 минут до школы 13 и детского сада 92. Во дворе магазины, аптеки, салоны, детские площадки. До центра 10-15 минут на автомобиле.
Контакты на сайте: