Продажа квартир / 2-комн., Санкт-Петербург, 19 900 000
Кратко
| ID | 39965282 |
|---|---|
| Категория | 2-комн. |
| Город | Санкт-Петербург |
| Кол.во комнат | 2 |
| Этаж | 3 |
| Этажность | 5 |
| Материал стен | кирпич |
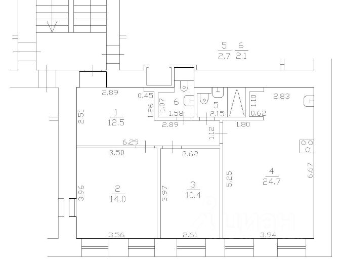
| Площадь общая | 66.4 |
| Площадь жилая | 24.4 |
| Площадь кухни | 24.7 |
Квартира современной евро планировки после капитального ремонта с заменой всех конструкций и коммуникаций Это новая квартира в вековых кирпичных стенах. Только что сделанный ремонт, в квартире ни кто не жил!
В доме был капремонт ВСЕХ инженерных систем и фасадов
1 взрослый собственник, прямая продажа
Кухня 25 кв.м.
Две спальни 10+14 кв.м.
Саузел-постирочная и санузел с просторной душевой
Горячая вода теплоцентр + есть бойлер на летнее отключение
Огромные новые окна 1х2 метра с огромными подоконниками
Высокие потолки 2,85м
Новый современный ремонт из качественных материалов
Окна на очень тихую улицу Вёсельная где не ездят транзитом машины.
Большой безопасный двор с парковочными местами, детскими площадками, WB, Ozon.
Через дорогу школа, детский сад.
В пешей доступности метро Горный институт
В пешей доступности парки и скверы, Севкабель
Приличные культурные соседи, чистая парадная
Метровые кирпичные стены по периметру квартиры дают полную звукоизоляцию.
В доме был капремонт ВСЕХ инженерных систем и фасадов
1 взрослый собственник, прямая продажа
Кухня 25 кв.м.
Две спальни 10+14 кв.м.
Саузел-постирочная и санузел с просторной душевой
Горячая вода теплоцентр + есть бойлер на летнее отключение
Огромные новые окна 1х2 метра с огромными подоконниками
Высокие потолки 2,85м
Новый современный ремонт из качественных материалов
Окна на очень тихую улицу Вёсельная где не ездят транзитом машины.
Большой безопасный двор с парковочными местами, детскими площадками, WB, Ozon.
Через дорогу школа, детский сад.
В пешей доступности метро Горный институт
В пешей доступности парки и скверы, Севкабель
Приличные культурные соседи, чистая парадная
Метровые кирпичные стены по периметру квартиры дают полную звукоизоляцию.
Контакты на сайте:
Карта
Похожие
2-комн.
Площадь м2:
57.8/26.4/16
Этаж:
8/14
2-комн.
Площадь м2:
54.1/29.6/7.6
Этаж:
15/16