Продажа квартир / 3-комн., Елизово, 5 500 000
Кратко
ID | 39758644 |
---|---|
Категория | 3-комн. |
Город | Елизово |
Кол.во комнат | 3 |
Этаж | 1 |
Этажность | 1 |
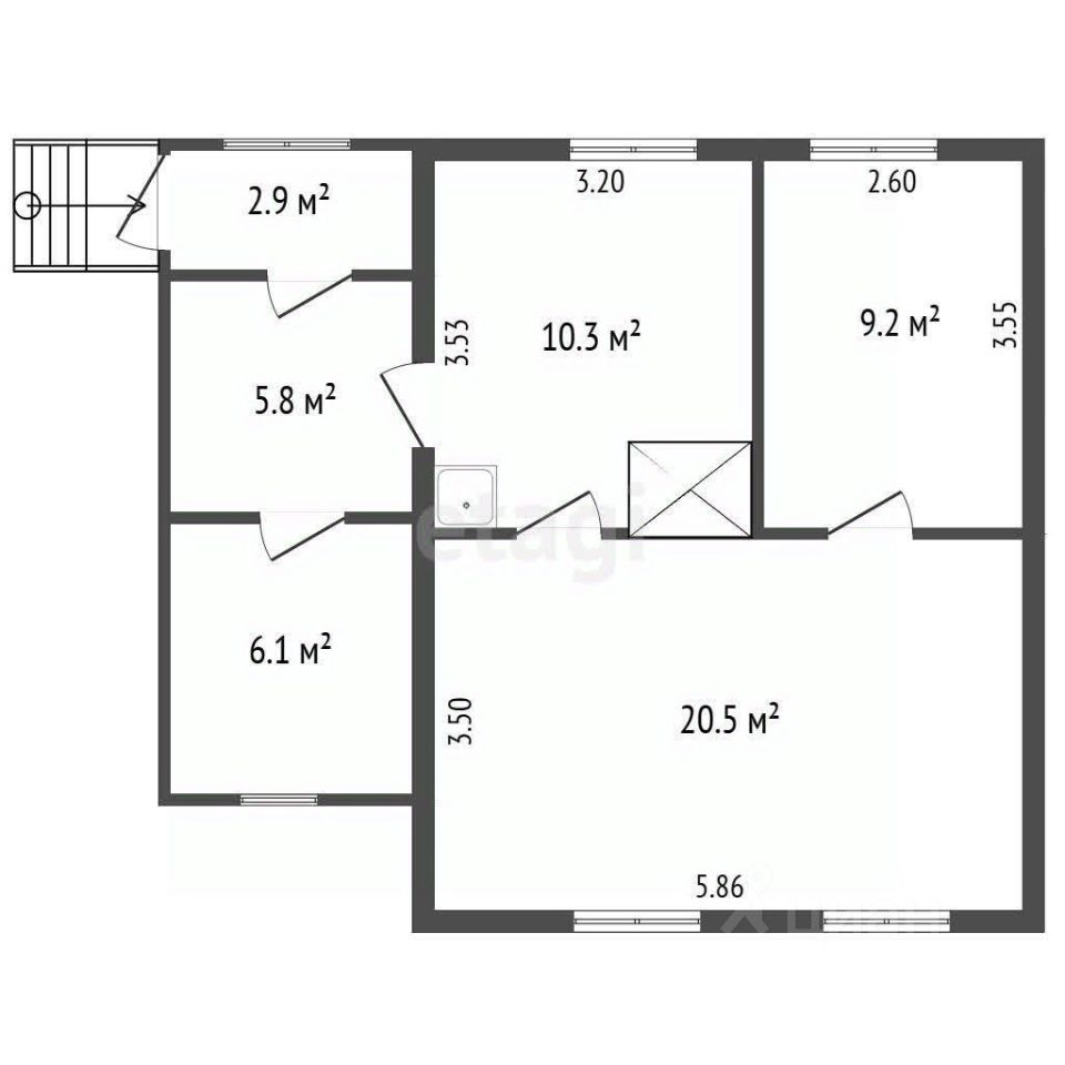
Площадь общая | 54.8 |
Площадь жилая | 39.8 |
Площадь кухни | 10 |
Трехкомнатная квартира в одноэтажном доме на двух хозяев предлагает комфортное проживание с преимуществами загородного формата без отрыва от городской инфраструктуры. Площадь квартиры рационально распределена между двумя изолированными спальнями и просторной кухней-гостиной, объединенной в единое светлое пространство. Санузел совмещенный, с качественной чистовой отделкой и возможностью установки современной сантехники. Система отопления комбинированная — печное дополнено электрическим, что гарантирует тепло в доме вне зависимости от внешних факторов.
Объект расположен на полностью благоустроенном участке с ограждением по периметру. Территория включает ухоженную зеленую зону, практичные грядки для выращивания овощей, баню с предбанником и просторную мастерскую-сарай с возможностью переоборудования под творческую студию или рабочее помещение. Вода подведена ко всем ключевым зонам участка, что упрощает уход за территорией. Парковочная зона рассчитана на три автомобиля, въезд обеспечен круглогодично, включая своевременную зимнюю очистку. Установлены столбы для забора и залита плита под откатные ворота.
Локация сочетает приватность с развитой инфраструктурой: в 200 метрах — остановка общественного транспорта с маршрутами в центр, в 400 метрах — детский сад, в 500 метрах — школа. Ближайшие магазины первой необходимости находятся в пешей доступности. Район характеризуется стабильной социальной средой и доброжелательными соседями.
Объект готов к проживанию, все инженерные системы функционируют исправно. Для заинтересованных покупателей возможен торг.
Гарантируется юридическ
Код пользователя: 108198
Номер в базе: 9061939
Объект расположен на полностью благоустроенном участке с ограждением по периметру. Территория включает ухоженную зеленую зону, практичные грядки для выращивания овощей, баню с предбанником и просторную мастерскую-сарай с возможностью переоборудования под творческую студию или рабочее помещение. Вода подведена ко всем ключевым зонам участка, что упрощает уход за территорией. Парковочная зона рассчитана на три автомобиля, въезд обеспечен круглогодично, включая своевременную зимнюю очистку. Установлены столбы для забора и залита плита под откатные ворота.
Локация сочетает приватность с развитой инфраструктурой: в 200 метрах — остановка общественного транспорта с маршрутами в центр, в 400 метрах — детский сад, в 500 метрах — школа. Ближайшие магазины первой необходимости находятся в пешей доступности. Район характеризуется стабильной социальной средой и доброжелательными соседями.
Объект готов к проживанию, все инженерные системы функционируют исправно. Для заинтересованных покупателей возможен торг.
Гарантируется юридическ
Код пользователя: 108198
Номер в базе: 9061939
Контакты на сайте: