Продажа квартир / 3-комн., Россия, Санкт-Петербург, Просвещения проспект, 20 000 000

Кратко

ID 39827422
Категория 3-комн.
Страна Россия
Город Санкт-Петербург
Метро Проспект Просвещения
Район Выборгский
Улица Просвещения проспект
Номер дома д.34
Кол.во комнат 3
Этаж 14
Этажность 15
Материал стен панельный
Балкон лоджия
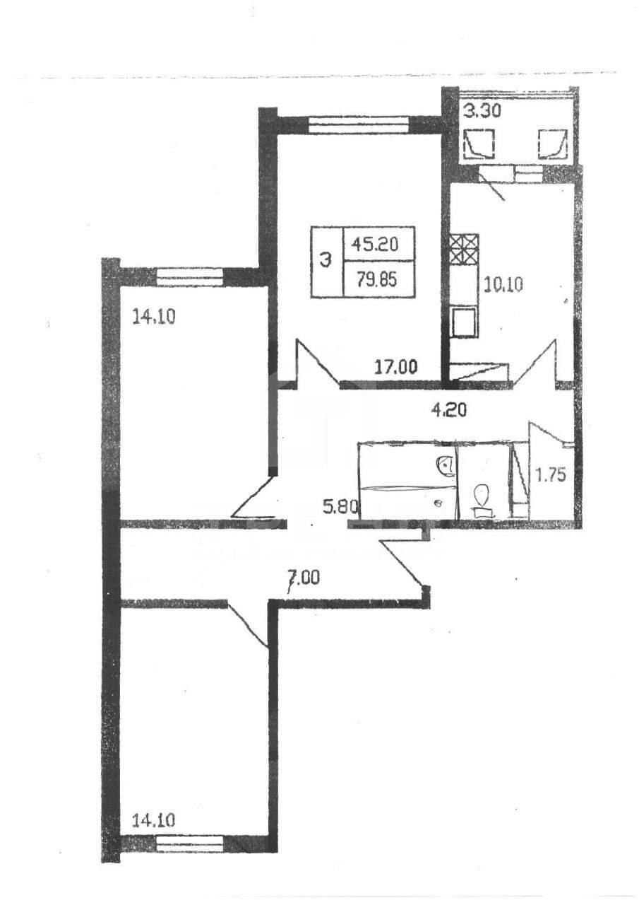
Площадь общая 80
Площадь жилая 45.2
Площадь кухни 10
Код объекта: 1867147. Уникальное предложение в Санкт-Петербурге: просторная трёхкомнатная квартира на проспекте Просвещения, 34 - идеальный выбор для комфортной жизни! Квартира расположена на 14-м этаже 15-этажного панельного дома 2003 года постройки. Общая площадь составляет 80 кв. м, из которых 45,2 кв. м - жилая площадь. Высота потолков - 2,6 м, что создаёт ощущение простора и свободы. Три изолированные комнаты (14,1 + 14,1 + 17 кв. м) предлагают множество возможностей для обустройства по вашему вкусу. Косметический ремонт позволяет воплотить в жизнь любые дизайнерские идеи. Угловая планировка квартиры обеспечивает хорошую освещённость и вентиляцию. Кухня площадью 10 кв. м станет любимым местом для семейных ужинов и дружеских посиделок. Наличие лоджии добавляет дополнительное пространство для отдыха и хранения. Развитая инфраструктура района порадует жителей: магазины, школы, детские сады и поликлиники находятся в шаговой доступности. Наземная парковка обеспечит удобное размещение автомобиля. Не упустите шанс стать владельцем этой замечательной квартиры! Звоните нам прямо сейчас, чтобы узнать больше и записаться на просмотр. Мы гарантируем безопасную сделку и юридическую поддержку нашим клиентам. Поможем одобрить ипотеку с сниженной ставкой. [#7618435#]

Карта

Похожие

3-комн.
Площадь м2: 80/45.2/10
Этаж: 14/15
3-комн.
Площадь м2: 91.19/47.33/26.22
Этаж: 7/9
3-комн.
Площадь м2: 73.7/43/10.5
Этаж: 3/3
3-комн.
Площадь м2: 115.3/52/22
Этаж: 7/7
3-комн.
Площадь м2: 62.9/46/6.3
Этаж: 3/9