Продажа квартир / 3-комн., Уфа, 7 150 000
Кратко
ID | 39822315 |
---|---|
Категория | 3-комн. |
Город | Уфа |
Кол.во комнат | 3 |
Этаж | 13 |
Этажность | 14 |
Материал стен | кирпич |
Площадь общая | 75.1 |
Площадь жилая | 41.7 |
Площадь кухни | 12.7 |
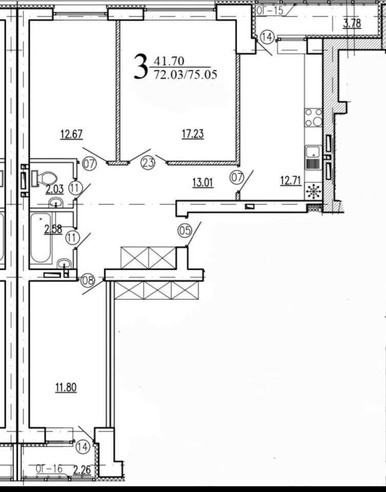
Продаётся трёхкомнатная квартира распашонка по адресу ул. Гази Загитова, д. 9/1, 13 этаж из 14- лучшая планировка из возможных (на фото приложен план перепланировки в четырех комнатную квартиру).
Квартира светлая, теплая, с самой удачной планировкой, с большой кухней (12.7 м2), 2 лоджии, окна выходят на 2 стороны. Отличная квартира для большой семьи с детьми.
Кухонный гарнитур (без техники) и два кондиционера остаются в квартире.
Дом новый (2021 г.), кирпичный, 2 лифта (пассажирский и грузовой). Большая детская игровая площадка во дворе. Ведется видео наблюдение во дворе, в подъездах и лифтах. Все необходимые магазины, аптека и маркетплейсы в шаговой доступности.
Остановка в 5 минутах ходьбы- маршруты 30, 30к, 135,112, 248.
Школа 128, садики 97, 330.
За соседним домом (пешком 3 минуты) ведется строительство новой школы.
Микрорайон находится в 10 минутах до Проспекта Октября и Центра Уфы.
Район развивается, новая современная поликлиника для детей и взрослых, там же женская консультация (все в одном здании).
Неподалеку красивый Сквер Волна, с детской площадкой, озером и местами для отдыха.
Один взрослый собственник.
Прописанных нет.
Маткапитал не использовали.
Быстрый выход на сделку.
ВСЯ ЦЕНА В ДОГОВОРЕ!!!
Объявление есть на дом клике.
Общая площадь 75,1м2
Зал 17,23 м2
Спальня 12,67 м2
Спальня 11,80 м2
Кухня 12,71 м2
Ванная 2,58 м2
Туалет 2,03 м2
Лоджия 3,78 м2 и 2,26 м2
Риелторы - подход только с реальными предложениями (договор не заключаю). Торг.
Квартира светлая, теплая, с самой удачной планировкой, с большой кухней (12.7 м2), 2 лоджии, окна выходят на 2 стороны. Отличная квартира для большой семьи с детьми.
Кухонный гарнитур (без техники) и два кондиционера остаются в квартире.
Дом новый (2021 г.), кирпичный, 2 лифта (пассажирский и грузовой). Большая детская игровая площадка во дворе. Ведется видео наблюдение во дворе, в подъездах и лифтах. Все необходимые магазины, аптека и маркетплейсы в шаговой доступности.
Остановка в 5 минутах ходьбы- маршруты 30, 30к, 135,112, 248.
Школа 128, садики 97, 330.
За соседним домом (пешком 3 минуты) ведется строительство новой школы.
Микрорайон находится в 10 минутах до Проспекта Октября и Центра Уфы.
Район развивается, новая современная поликлиника для детей и взрослых, там же женская консультация (все в одном здании).
Неподалеку красивый Сквер Волна, с детской площадкой, озером и местами для отдыха.
Один взрослый собственник.
Прописанных нет.
Маткапитал не использовали.
Быстрый выход на сделку.
ВСЯ ЦЕНА В ДОГОВОРЕ!!!
Объявление есть на дом клике.
Общая площадь 75,1м2
Зал 17,23 м2
Спальня 12,67 м2
Спальня 11,80 м2
Кухня 12,71 м2
Ванная 2,58 м2
Туалет 2,03 м2
Лоджия 3,78 м2 и 2,26 м2
Риелторы - подход только с реальными предложениями (договор не заключаю). Торг.
Контакты на сайте: