Продажа квартир / 3-комн., Саратов, 6 900 000
Кратко
| ID | 40007603 |
|---|---|
| Категория | 3-комн. |
| Город | Саратов |
| Кол.во комнат | 3 |
| Этаж | 10 |
| Этажность | 10 |
| Материал стен | кирпич |
| Площадь общая | 76.3 |
| Площадь жилая | 48.2 |
| Площадь кухни | 25.7 |
Продаётся 3-комнатная квартира в кирпичном доме 2003 года постройки, по адресу: ул. им. Карла Маркса, д. 9/19, Октябрьский район. Дом тёплый, ухоженный подъезд, благоустроенный двор с открытой парковкой. Квартира расположена на 10 этаже 10-этажного дома, сверху полноценный технический этаж.
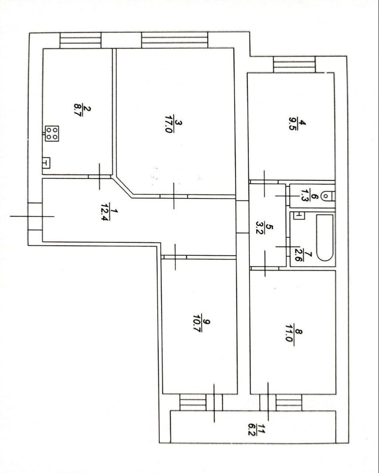
Планировка:
Общая площадь: 76,3 м²
Жилая: 48,2 м²
Комнаты: 11 / 10,7 / 17 м² — изолированные
Кухня-гостиная: 18,2 м²
Лоджия 6,2 м², застеклена
Санузел раздельный
Перепланировок нет
Состояние:
Квартира светлая, тёплая, с хорошей планировкой и панорамным видом. Необходим небольшой косметический ремонт — всё функционально, можно заехать и обновлять постепенно.
Документы:
4 собственника: 2 взрослых, 2 ребенка
Использовался материнский капитал; распоряжение органов опеки получено
В другой квартире детям будут выделены доли — решение согласовано
Прописаны двое детей, выпишутся до сделки
Обременений нет, задолженностей нет
Чистая продажа, без альтернативы
Основание — переезд в другой город, новая квартира уже куплена
Инфраструктура:
Дом расположен в одной из наиболее развитых частей Октябрьского района:
Школа и детский сад — рядом, пешком
Сетевые магазины в шаговой доступности
Политехнический университет и Медицинский университет — поблизости
Рядом лесопарковая зона Кумысная Поляна — отличные прогулочные и спортивные маршруты
Удобная транспортная развязка
Планировка:
Общая площадь: 76,3 м²
Жилая: 48,2 м²
Комнаты: 11 / 10,7 / 17 м² — изолированные
Кухня-гостиная: 18,2 м²
Лоджия 6,2 м², застеклена
Санузел раздельный
Перепланировок нет
Состояние:
Квартира светлая, тёплая, с хорошей планировкой и панорамным видом. Необходим небольшой косметический ремонт — всё функционально, можно заехать и обновлять постепенно.
Документы:
4 собственника: 2 взрослых, 2 ребенка
Использовался материнский капитал; распоряжение органов опеки получено
В другой квартире детям будут выделены доли — решение согласовано
Прописаны двое детей, выпишутся до сделки
Обременений нет, задолженностей нет
Чистая продажа, без альтернативы
Основание — переезд в другой город, новая квартира уже куплена
Инфраструктура:
Дом расположен в одной из наиболее развитых частей Октябрьского района:
Школа и детский сад — рядом, пешком
Сетевые магазины в шаговой доступности
Политехнический университет и Медицинский университет — поблизости
Рядом лесопарковая зона Кумысная Поляна — отличные прогулочные и спортивные маршруты
Удобная транспортная развязка
Контакты на сайте: