Продажа квартир / 3-комн., Тюмень, 10 800 000
Кратко
ID | 39768795 |
---|---|
Категория | 3-комн. |
Город | Тюмень |
Кол.во комнат | 3 |
Этаж | 17 |
Этажность | 19 |
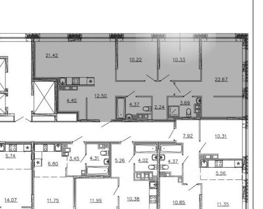
Площадь общая | 92.5 |
Площадь кухни | 21.4 |
Продаётся просторная трёхкомнатная квартира площадью 92.5 кв.м в монолитно-кирпичном доме 2023 года постройки, расположенном в уютном районе города Тюмени с современными дворами, спортивными площадками, велодорожками и своим променадом для прогулок.
В квартире никто не прописан, обременений нет, что позволяет выйти на быструю сделку. Пока мы оформляем сделку, вы можете приступать к ремонту.
Дом дал усадку, поэтому можно использовать любые стройматериалы для отделки.
Квартира расположена на 17 этаже 25-этажного дома, что обеспечивает прекрасный вид из окон на двор, лес и улицу. Кухня занимает 21.4 кв.м, предоставляя достаточно места для комфортного приготовления пищи, семейных ужинов и приема гостей. Квартира имеет 2 санузла, что является несомненным преимуществом для большой семьи.
Особенностью данного жилья является его расположение закрытая охраняемая территория дома гарантирует безопасность и спокойствие жителей. Во дворе находятся детская и спортивная площадки, где ваши дети смогут весело проводить время на свежем воздухе. Рядом расположены школа, детский сад, торговый центр, парк и фитнес-центр.
Для тех, кто следит за красотой и стилем, поблизости работают Wow Hair, Студия реконструкции волос, Барбершоп и Pion, а также бьюти-студия. Любителям вкусной еды придутся по душе расположенные рядом кафе и рестораны, включая Zotman Pizza.
Эта квартира станет идеальным выбором для тех, кто ценит комфорт, безопасность и качество жизни. Приглашаем вас ознакомиться с этим предложением поближе и убедиться во всех преимуществах данной недвижимости.
В квартире никто не прописан, обременений нет, что позволяет выйти на быструю сделку. Пока мы оформляем сделку, вы можете приступать к ремонту.
Дом дал усадку, поэтому можно использовать любые стройматериалы для отделки.
Квартира расположена на 17 этаже 25-этажного дома, что обеспечивает прекрасный вид из окон на двор, лес и улицу. Кухня занимает 21.4 кв.м, предоставляя достаточно места для комфортного приготовления пищи, семейных ужинов и приема гостей. Квартира имеет 2 санузла, что является несомненным преимуществом для большой семьи.
Особенностью данного жилья является его расположение закрытая охраняемая территория дома гарантирует безопасность и спокойствие жителей. Во дворе находятся детская и спортивная площадки, где ваши дети смогут весело проводить время на свежем воздухе. Рядом расположены школа, детский сад, торговый центр, парк и фитнес-центр.
Для тех, кто следит за красотой и стилем, поблизости работают Wow Hair, Студия реконструкции волос, Барбершоп и Pion, а также бьюти-студия. Любителям вкусной еды придутся по душе расположенные рядом кафе и рестораны, включая Zotman Pizza.
Эта квартира станет идеальным выбором для тех, кто ценит комфорт, безопасность и качество жизни. Приглашаем вас ознакомиться с этим предложением поближе и убедиться во всех преимуществах данной недвижимости.
Контакты на сайте: