Продажа квартир / 4-комн., Россия, Московская область, Балашиха, Гагарина микрорайон, 22 600 000

Кратко

ID 39825852
Категория 4-комн.
Страна Россия
Регион Московская область
Город Балашиха
Улица Гагарина микрорайон
Номер дома д.6
Кол.во комнат 4
Этаж 3
Этажность 9
Материал стен кирпично-монолитный
Балкон 2 лоджии
Площадь общая 145.7
Площадь жилая 78.8
Площадь кухни 14
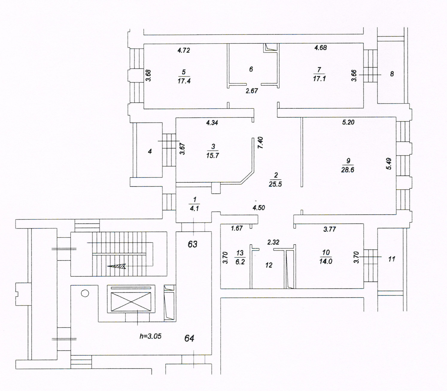
Продам четырехкомнатную просторную светлую квартиру, общей площадью 145,7 м2., хорошая типовая отделка. Квартира находится на 3этаже 10 этажной секции дома, 3 просторных лоджий. Кухня - 14 кв. м., площадь комнат 15,7 кв.м., 17,4 кв.м., 17,1 кв. м. и 28,6 кв.м., площадь коридора 29 кв.м., также имеется гардеробная. В квартире два просторных санузла. Кирпичный дом 2010 года постройки. В доме имеется мусоропровод, грузовой и пассажирский лифт. Во дворе детская площадка, вокруг лесопарковая зона, двор огорожен забором. На этаже всего две квартиры. Свободная продажа, возможна ипотека. [#7613106#]

Карта

Похожие

4-комн.
Площадь м2: 145.7/78.8/14
Этаж: 3/9
4-комн.
Площадь м2: 140//43
Этаж: 4/4
4-комн.
Площадь м2: 98.7/74.9/12
Этаж: 4/12
4-комн.
Площадь м2: 145/78/14
Этаж: 3/9