Продажа квартир / 4-комн., Россия, Алтайский край, Барнаул, П.С.Кулагина улица, 5 500 000

Кратко

ID 39886536
Категория 4-комн.
Страна Россия
Регион Алтайский край
Город Барнаул
Улица П.С.Кулагина улица
Номер дома д.46
Кол.во комнат 4
Этаж 5
Этажность 5
Материал стен кирпичный
Балкон балкон
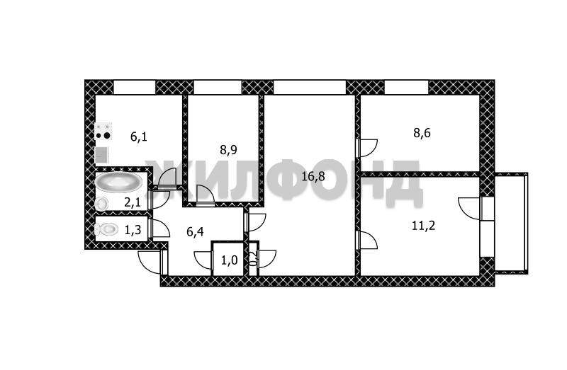
Площадь общая 62.6
Площадь жилая 44.6
Площадь кухни 5.8
Телефон
4 комн. квартира по ул. Кулагина. Общей площадью: 62.60 кв.м. Продается просторная и уютная квартира в теплом кирпичном доме. Общая площадь квартиры составляет 62,6 квадратных метров, что позволит Вам и Вашей семье чувствовать себя комфортно и свободно. Квартира расположена на пятом этаже пятиэтажного дома, что обеспечивает тишину и уединение от городской суеты. Кроме того, благодаря высокому этажу, из окон открывается прекрасный вид. В квартире три изолированные комнаты и одна проходная. Всё это позволит Вам организовать пространство по своему вкусу. Здесь Вы сможете создать уютную гостиную, удобные спальни и кабинет для работы или учебы. Отдельная кухня, еще одно преимущество для хозяйки, которая любит творить свои кулинарные шедевры в уединении. Особое преимущество этой квартиры - ее удачное расположение. Рядом с домом находятся школа, детский сад, магазины, аптеки, остановка общественного транспорта, что позволит Вам с легкостью управляться с повседневными делами. Все это делает эту квартиру отличным вариантом для жизни для семей с детьми, молодых пар и активных людей. Кроме того, благодаря ее удачному расположению, она также может стать отличным вариантом для сдачи в аренду. В квартире 2 взрослых собственника, без обременения, нет детских долей, быстрый выход на сделку. Звоните прямо сейчас и мы с радостью организуем для Вас просмотр в удобное время. Возможен обмен на вашу недвижимость. Возможна продажа в рассрочку. При звонке, пожалуйста, сообщите номер варианта - JV004022102358. [#7677434#]

Карта

Похожие

4-комн.
Площадь м2: 62.6/44.6/5.8
Этаж: 5/5
4-комн.
Площадь м2: 94.6/49.4/18.1
Этаж: 15/16
14 500 000
4-комн.
Площадь м2: 217.6/140/15
Этаж: 5/10
4-комн.
Площадь м2: 217.6/140/15
Этаж: 5/10